Pergolenviertel BF 3B

Loki-Schmidt-Platz 1-31 und Winterlindenweg 69 + 71, 22297 Hamburg, Niemcy
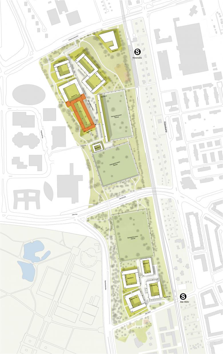
Strukturplan
Drawing © kbnk

Grün und Nachhaltig – neue Wohnstandards im Pergolenviertel 3B

Im Hamburger Stadtteil Winterhude/Alsterdorf entsteht das Neubaugebiet „Pergolenviertel“. Das Gebiet besteht aus mehreren Baufeldern, die vorwiegend Wohnraum für Hamburgs Bürger schaffen. Eingebettet in einer Parkanlage setzt das Quartier neue Maßstäbe in Punkto Wohnqualität und Nachhaltigkeit.

Mehr Möglichkeit zur Gemeinschaft

Auf dem Baufeld 3B soll ein Wohnungs- und Sozialangebot für Jung und Alt, sowie Singles und Familien, aber auch Baugemeinschaften entstehen. Die generationsübergreifende Durchmischung der Bewohnerschaft ist hierbei ein wichtiger sozialer Aspekt.
Ein Mix aus 1-5-Zimmer Wohnungen, teilweise gefördert und barrierefrei, sowie mehrere Gewerbeeinheiten und ein Café, decken den individuellen Bedarf dieser breiten Zielgruppe ab.

Soziale Einrichtungen, wie die Wohn-Pflegegemeinschaft, fördern die Integration und bieten allen Bewohnern die Möglichkeit von einander zu profitieren. Gemeinschaftsräume für Feiern, Spielabende oder Public Viewings zur WM ermöglichen die Zusammenkunft auch außerhalb der eignen vier Wände. Eine reservierbare Gästewohnung ermöglicht es zudem, Besucher im direkten Umfeld unterzubringen.

Die üppig grünen Freianlagen laden zum Verweilen ein – ob aktiv gemeinschaftlich beim Urban Gardening oder alleine zurückgezogen. Die weitläufige Anlage schafft Raum für unterschiedliche Bedürfnisse. Spannend gestaltete Spielflächen und ein Wasserbecken bieten Kindern Raum zum Planschen und Toben.

Einbindung des Quartiers durch zeitgemäße Mobilität und Infrastruktur

Ein innovatives Mobilitätskonzept bildet die Basis der Infrastruktur des Pergolenviertels. Neben den regulären Bewohner- und Kundenparkplätzen des Einzelhandels in der Quartiersgarage, ermöglichen Ladestationen für Elektroautos und Car-Sharing-Stellplätze eine nachhaltige und zeitgemäße Mobilität.

Die Gemeinschaftsabstellräume und privaten Kellerflächen bieten ausreichend Stellfläche für Fahrräder, selbst für sperrige Anhänger und Lastenfahrräder. Akkustationen in den Privatkellern ermöglichen das Aufladen von E-Bikes. Eine Werkstatt mit angegliedertem Café, das Bike-Repair-Café, bietet seinen Service zur Instandsetzung der Räder.

Gestaltung der Architektur - Einheit in der Vielfalt

Die architektonische Grundhaltung des gesamten Areals Pergolenviertel ist durch einen Gestaltungsleitfaden definiert. Getreu dem Motto „Einheit in der Vielfalt“ wird dieser der Planung und Gestaltung der einzelnen Baufelder zur Grunde gelegt. Hochwertiger Backstein mit Ziermauerwerkselementen prägen das Erscheinungsbild der Fassaden. Die nördlichen Baufelder erhalten Fassaden in grauer Sortierung - nach Süden verläuft das Grau in rötlichen Backstein. Die längliche Kubatur des Baufeld 3B wird durch einen erhöhten Riegel im Süden des Baufeldes begrenzt. Bänder strukturieren die Fassaden und definieren die Geschosse. Auffällige Rundbogendurchgänge markieren die öffentliche Durchgänge und Passagen, sie stehen symbolisch für die Offenheit des Quartiers.

Das Gebäude wird nach dem KFW – Effizienzhaus – Standard 55 gebaut und ist NahWo-zertifiziert, zusätzlich werden nachhaltige Dämmstoffe verwendet, die nach dem blauen Engel klassifiziert sind.

Photo © Piet Niemann, Hamburg
Quartiersplan
Drawing © kbnk
Photo © Piet Niemann, Hamburg
Photo © Piet Niemann, Hamburg
Innenhof
Photo © Piet Niemann, Hamburg
Grundriss Erdgeschoss mit Außenraumgestaltung
Drawing © kbnk / LandschaftsArchitektur Birgit Hammer, Berlin
Nutzungen
Drawing © kbnk
Photo © Piet Niemann, Hamburg
Year
2020
Client
Richard Ditting GmbH & Co.KG
Statik
KFP Ingenieure Part GmbB, Buxtehude
Haustechnik
ITE Ingenieurgesellschaft Torsten Erdmann mbH, Hamburg
Brandschutz
Ingenieurbüro T. Wackermann, Hamburg
Freiraumplanung
Landschafts.Architektur Birgit Hammer, Berlin

Other Projects by KBNK Architekten 

Medienzentrum Lauenburg
Lauenburg/Elbe, Niemcy
ÜSQ - E3
Hamburg Hafencity, Niemcy
Hellerhöfe
Frankfurt am Main, Niemcy
Arbeiten im Grünen
Buxtehude
Fleet 3
Hamburg, Niemcy