SonninPark

Sonninstr. 7-15 / Nagelsweg 22-22f, 20097 Hamburg, Niemcy
Zugang zum SonninPark
Photo © Fotografie Dorfmüller/Klier, Hamburg

Neubau von 356 Wohnungen in Hammerbrook.

Auf dem ehemaligen Gelände des Elektronik-Konzerns Sharp in Hamburg Hammerbrook entsteht der neue, zentrale Sonninpark als öffentliche Grünanlage mit einer Blockrandbebauung, die familienfreundliches Wohnen und Gewerbeflächen bietet. Das Grundstück liegt zwischen dem Mittelkanal im Süden und einer neuen Planstraße im Norden. Im Westen wird es von der Sonninstraße und im Osten vom Nagelsweg begrenzt.

Das Karree aus insgesamt 24 Häusern umschließt den weitläufigen Blockinnenraum. Hiervon wird ein Großteil der Fläche als öffentlicher Stadtteilpark von den Investoren der Wohnbebauung realisiert. Eine Wiese mit Schatten spendenden Bäumen und ein Spielplatz laden zum Aufenthalt ein.

Der Wohnblock öffnet sich mit einer breiten Freitreppe zum Mittelkanal und der Kanal-Promenade. Eine weitere große Öffnung an der Sonninstraße und zwei weitere Gebäude-Durchgänge im Osten unterstützen die enge Verknüpfung mit den angrenzenden Stadträumen.

Die urbanen Ziegelfassaden zu den Straßen differenzieren sich durch Unterschiede in der Struktur und Farbigkeit. Im Innenhof unterstützen helle Putzfassaden und ein durchlaufender 2-geschossiger geschlämmter Ziegel-Sockel die hochwertige, warme Austrahlung.

Das Gesamtareal umfasst insgesamt ca. 805 Wohneinheiten, ein Mix aus frei finanzierten und öffentlich geförderten Mietwohnungen mit verschiedensten Wohnungsgrößen für Singles, Paare und Familien.
Das lebhafte Zusammenspiel zwischen Architektur, Einbindung im Quartier und Identifikation der zukünftigen Bewohner sind entscheidende Faktoren für eine gelungene Nachbarschaft.
Im nördlichen Bereich des Areals entsteht eine KiTa, Läden für den täglichen Bedarf und ein Café. Diese werden das Quartier zusätzlich beleben.

Die grüne Gestaltung des Innenhofs mit diversen Spielmöglichkeiten bietet den Bewohnern Raum für Austausch mit Ihren Nachbarn.

Der Stadtteil Hammerbrook war vor den Bombentreffern im zweiten Weltkrieg ein beliebtes Wohnquartier das aber bis auf wenige Gebäude komplett zerstört wurde. Eines dieser wenigen von der äußeren Erscheinung erhaltenen Bauwerke ist die ehem. Schokoladenfabrik in der Sonninstraße. Anfang der 1980er-Jahre wurde Hammerbrook mit dem Bau der Harburger S-Bahnstrecke in ein Geschäftsviertel, die City Süd umgewandelt und revitalisiert. Neben großen Bürokomplexen ziehen sich aber zahlreiche Kanäle durch Hammerbrook und man findet immer wieder kleine Grünstreifen und schöne Plätze am Wasser. Diese Qualitäten nutzend soll der Stadtteil nun als neuer, attraktiver Wohnstandort wiederbelebt werden.

Kenndaten:
Neubau von 356 Wohnungen

Planung: LPH 2-5, Teile von 8 (2015-2018)
Realisierung: 2019
Fläche: 30.100 qm BGFa

Lage in der Stadt
Drawing © kbnk
Luftbild
Visualization © Moka-Studio GbR
Lageplan
Drawing © kbnk / grabner huber lipp landschaftsarchitekten und stadtplaner
Planung Häuser kbnk
Drawing © kbnk
Innenhof - Quartiersplatz
Photo © PK Odessa, Lanz, Schels
Ansicht Nagelsweg
Photo © PK Odessa, Lanz, Schels
Ansicht Sonninstraße
Photo © PK Odessa, Lanz, Schels
Fassadendetail Nagelsweg
Photo © PK Odessa, Lanz, Schels
Sonninstraße
Photo © PK Odessa, Lanz, Schels
Schnitt
Drawing © kbnk
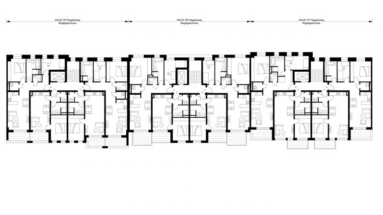
Grundriss Regelgeschoss
Drawing © kbnk
Year
2015
Client
Objektges. Sonninstr.2 Wohnungsbau GmbH & Co. KG
Statik
ISS - Ingenieurges. Sander&Schneider GbR, Hamburg
Haustechnik
Ingenieurbüro Rainer Mai, Berlin
Brandschutz
Ingenieurbüro Wackermann GbR, Hamburg
Freiraum
grabner huber lipp landschaftsarchitekten und stadtplaner partnerschaft mbb, Freising

Other Projects by KBNK Architekten 

Medienzentrum Lauenburg
Lauenburg/Elbe, Niemcy
ÜSQ - E3
Hamburg Hafencity, Niemcy
Hellerhöfe
Frankfurt am Main, Niemcy
Pergolenviertel BF 3B
Hamburg, Niemcy
Arbeiten im Grünen
Buxtehude