Liceo Cantonale di Bellinzona
Bellinzona, Switzerland
Visualization © Filippo Bolognese
Visualization © Filippo Bolognese
Visualization © Filippo Bolognese
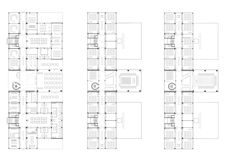
Drawing © Durisch+Nolli
Drawing © Durisch+Nolli
Drawing © Durisch+Nolli
-
Year
-
2018
-
Client
-
Repubblica e Cantone Ticino, Dipartimento delle Finanze e dell'Economia, Divisione delle Risorse, Sezione della Logistica
-
Team
-
Pia Durisch, Aldo Nolli, Niccolò Nessi, Irene Giovanetti, Ulrike Krommer
-
Bauingenieur
-
Schnetzer Puskas Ingenieure AG
-
HLKS-Planung
-
Tecnoprogetti SA
-
Elektroplanung
-
Erisel SA
-
Bauphysik
-
IFEC ingegneria
Stabile Amministrativo
Lugano, Switzerland
Aiglon College
Chesères-Villars, Switzerland
Wohnungen für Studierende
Luzern, Switzerland
SAMS STA Chiasso
Chiasso, Switzerland
Villa Maraini
Roma, Italy