Der ehemalige Stall ist neu ein Wohnhaus
Photo © Ralph Feiner Fotografie, Malans/GR
In der einen Hälfte der Zwillingsstallscheune wird nun gewohnt. Mit einem minimalisierten Einbau bleibt das Erscheinungsbild erhalten. Natursteinmauern und Holzverkleidungen sind soweit als möglich belassen. Der neue Einbau zieht sich ins Innere zurück und die vorgelagerte Loggia zwischen den markanten Eckpfeilern verstärkt das Bild der ehemaligen Stallscheune.
Eingestellt ist ein Einbau aus Beton, ein zweigeschossiger offener Raum. Die Raumathmosphäre wird geprägt durch die Übernahme der ehemaligen Tenn-Struktur, die durchlässige Sicht- und Lichtführung und der speziell entworfenen neuen Beleuchtung.
Gartenzimmer
Photo © Ralph Feiner Fotografie, Malans/GR
Wohnzimmer
Photo © Ralph Feiner Fotografie, Malans/GR
Eingangsbereich
Photo © Ralph Feiner Fotografie, Malans/GR
Küche
Photo © Ralph Feiner Fotografie, Malans/GR
Bad OG
Photo © Ralph Feiner Fotografie, Malans/GR
Ortbetontreppe UG-EG
Photo © Ralph Feiner Fotografie, Malans/GR
Gäste-WC
Photo © Ralph Feiner Fotografie, Malans/GR
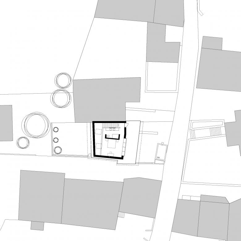
Situation
Drawing © atelier-f ag, Fläsch/GR
Grundriss Untergeschoss
Drawing © atelier-f ag, Fläsch/GR
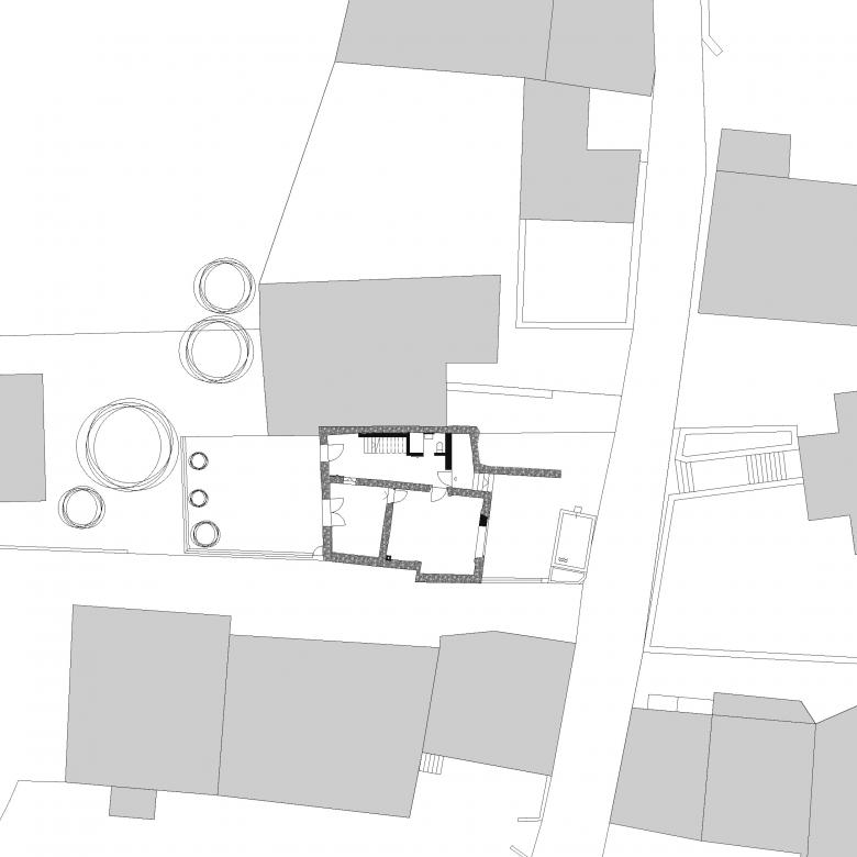
Grundriss Erdgeschoss
Drawing © atelier-f ag, Fläsch/GR
Grundriss Obergeschoss
Drawing © atelier-f ag, Fläsch/GR