Regent
Basel, Switzerland
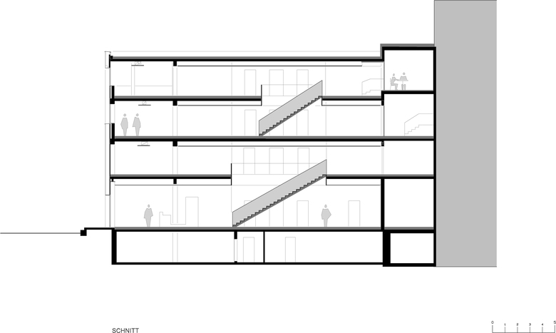
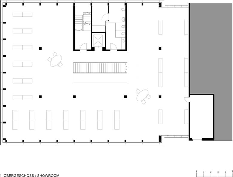
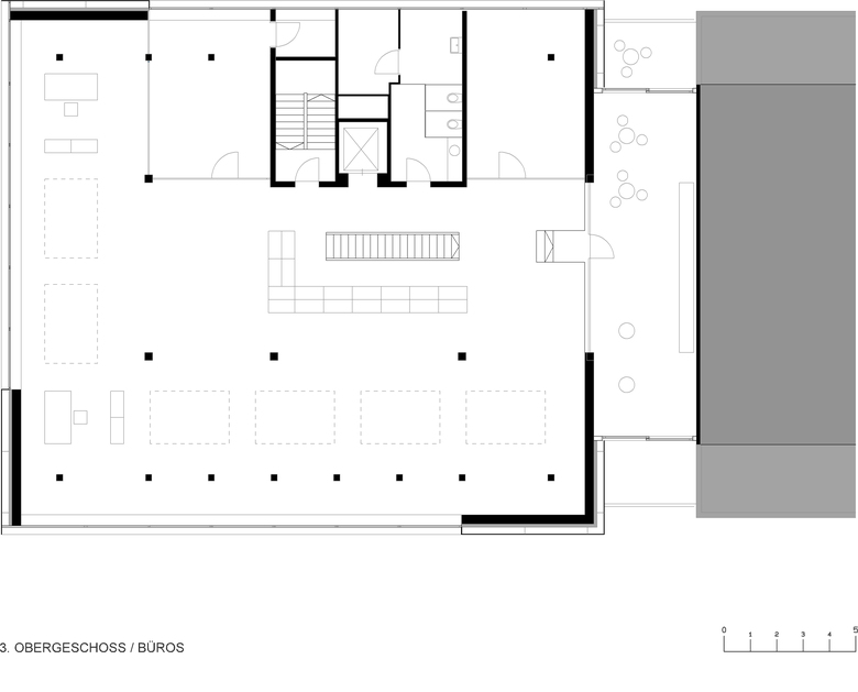
Das Regent Lighting Center in Basel entstand durch den Umbau und die Neugestaltung eines bestehenden viergeschossigen Gebäudes auf dem Dreispitzareal, das seit 1955 als Showroom- und Bürogebäude genutzt worden war. Grundlage des Projekts bildete der Erhalt des bestehenden Rohbaus, wobei zwei Showroomgeschosse im Erd- und ersten Obergeschoss sowie zwei Bürogeschosse im zweiten und dritten Obergeschoss übernommen wurden.
Ziel des Umbaus war es, ein neues Erscheinungsbild zu schaffen, das die Philosophie und Identität der Firma Regent Lighting widerspiegelt. Im Zentrum der architektonischen Konzeption stand das Licht selbst als gestalterisches und inhaltliches Thema. Die bestehende Gebäudestruktur wurde vollständig mit einer neuen, transluziden Fassadenhülle eingekleidet, welche die ursprüngliche Kubatur weiterhin als Ganzes erlebbar lässt.
Die Fassade ist als klassisch hinterlüftete Konstruktion ausgebildet, wobei sowohl Wetterschutz als auch Dämmung aus transluziden Kunststoffmaterialien bestehen. Die innere Schicht wurde mit Scobathermplatten ausgeführt, der äussere Wetterschutz mit Scobalitplatten. Diese Materialwahl verleiht dem Gebäude einen hautartigen, durchscheinenden Charakter und ermöglicht ein intensives Wechselspiel zwischen Innen und Aussen sowie zwischen Licht und Raum. Inspiriert von lichtdurchfluteten Körpern wie Medusen oder Schneeiglus entstand eine Architektur, die weniger Form als vielmehr den Ausdruck des Lichts thematisiert. Die einfache Materialisierung und die klare kubische Erscheinung prägen den Baukörper nach aussen und vermitteln eine anspruchsvolle Zurückhaltung. Durch eine subtile Drehbewegung der oberen Fassadenpartien wird die Orientierung zum Hof geregelt, während die gegenläufige Ausbildung der unteren Partien den Besucher gezielt zum Eingang führt. Die öffentlich zugänglichen Bereiche im Erd- und Obergeschoss umfassen Showroom, Empfang, Ausstellung, Auditorium und Café. In den oberen Geschossen sind Büroräume, Prototypenraum, Kantine, Bibliothek und Sitzungsräume für die Mitarbeitenden angeordnet.
Das Gebäude wurde für seine architektonische Qualität mit der Auszeichnung guter Bauten des Kantons Basel-Stadt gewürdigt.
- Architects
- ARCHITEKTUR Staehelin, Gisin + Partner AG
- Any
- 2000
- Project Status
- Construït
Projectes relacionats
Revista
-
-
Votació per l'Edifici de l'Any
An Architecture of 'Quiet Narrative'
SOSOKKI ANAC / Gi-Tae Chung | 30.03.2026













