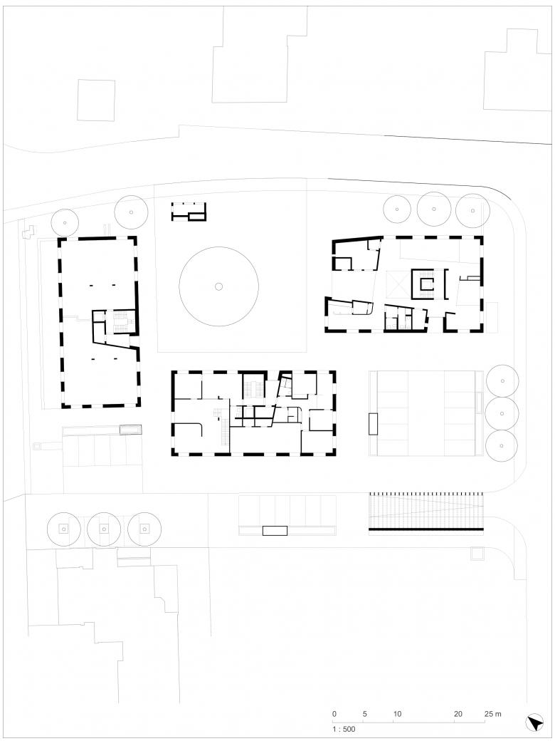
Zersiedelung, Verlust der Mitte, Kommunikationsdefizite oder die kleine Langeweile: Das Leben auf dem Lande hat so seine Mangelerscheinungen. Es geht auch anders, wenn Architekten und Bauherren sich eins sind. So geschehen in Altnau am Bodensee: Das Bankgebäude, Gewerbeeinrichtungen und Wohnungen umschließen einen Platz. Raum entsteht aus der Beziehung zwischen den (gebauten) Dingen. Der Nutzungsmix schafft den Ort. Die Sprache der Architektur ist verständlich: sie nützt das Vokabular der regionalen, alemannischen Sparsamkeit.
Altnau - Reparatur der Mitte
Zurück zur Projektliste- Standort
- Bahnhofstraße 12-14, 8595 Altnau, Schweiz
- Jahr
- 2018







