Foto © Werner Huthmacher

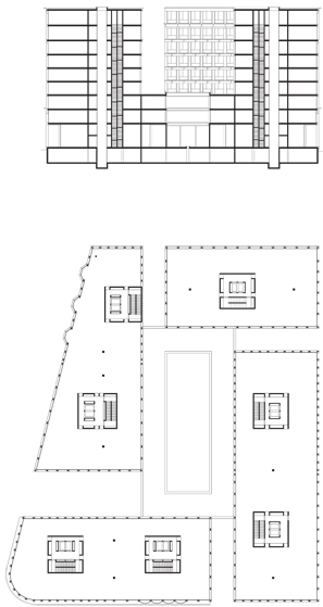
Nachhaltig flexibel – IJburg ist eines der großen Stadterweiterungsgebiete Amsterdams auf sieben künstlichen Inseln, geplant für 45.000 Menschen. Am Eingang des Haveneiland, der größten Insel, entstehen ab Herbst 2007 die »Solids«-Gebäude, eine Blockrandbebauung aus sieben Häusern. Diese kombinieren eine sehr hohe Bebauungsdichte – die vorgegebene Geschossflächenzahl von 6,4 ist vergleichbar mit Hochhausvierteln in Asien – mit einem frei gestaltbaren Grundrisskonzept. In seinem Erscheinungsbild knüpft das Ensemble an den klassischen städtischen Geschäftshaustypus mit Kolonnaden, Lochfassade, Balkonen und repräsentativer Steinverkleidung an. Das Gebäudeinnere ist demgegenüber fast radikal minimalistisch und auf die größtmögliche Freiheit in Nutzung und Raumaufteilung optimiert: Stahlbeton-Skelettbauweise, in Kernen zusammengefasste Treppenhäuser, Raumhöhen von sechs bzw. vier Metern ermöglichen die flexible Einteilbarkeit der Flächen. Alle Einbauten sind reversibel, tragende Zwischenwände statisch nicht nötig. Als Konstante ist das Tragwerk auf lange Lebensdauer ausgerichtet, während die technische Infrastruktur variabel und leicht an aktuelle Standards adaptierbar ist. Das Gebäude selbst gibt als funktionsneutrales »Gehäuse« nur den Rahmen vor, den jeder Mieter nach seinen Vorstellungen ausfüllt. Die loftartigen, bis zu 20 Meter tiefen Einheiten können als Büros ebenso genutzt werden wie als Hotel, für Praxen wie für soziale Einrichtungen, als Studios und Wohnungen. Ermöglicht wird so gleichermaßen die individuelle Gestaltung und einfache Anpassbarkeit an veränderte Anforderungen wie eine urbane Vielfalt und die Nachhaltigkeit im Gebrauch. Das Gebäudekonzept definiert mit dem Begriff »solide« Dauerhaftigkeit auch im funktionalen Sinn. Dass dies auch eine hochwertige und qualitätvolle Architektur umfasst, zeigt sich in der repräsentativen Fassade und den eleganten Foyers ebenso wie in der sorgfältigen Materialwahl und Detaillierung.

Generalunternehmer
JP van Eesteren
Rotterdam, NL

Planung
be Lochau

Projektleitung
Willem Bruijn
Stefan Beck
Tim Kreidel

Mitarbeiter
Anke Spittel
Christoph von Oefele
Florian Klee

Wettbewerb
2004, 1. Preis

Grundstücksfläche
6.210 m²

Bruttogeschossfläche
12.000 m²

Nutzfläche
9.000 m²

Foto © Werner Huthmacher
Foto © Werner Huthmacher
Foto © Werner Huthmacher
Foto © Werner Huthmacher
Foto © Werner Huthmacher
Bild © be

Solids IJburg

 Zurück zur Projektliste
Standort
Amsterdam, Niederlande
Jahr
2011

Andere Projekte von Baumschlager Eberle Architekten 

Zwei Türme für Quy Nhon
Quy Nhon, Vietnam
Green Office® ENJOY - mehr Energie und Holz
Paris, Frankreich
Altstattwiese - Peripherie neu
Wil, Schweiz
INcity - Stadt in der Stadt
Wuhan, China
Sozialer Wohnbau in Paris
Paris, Frankreich