NJFS CEO Office
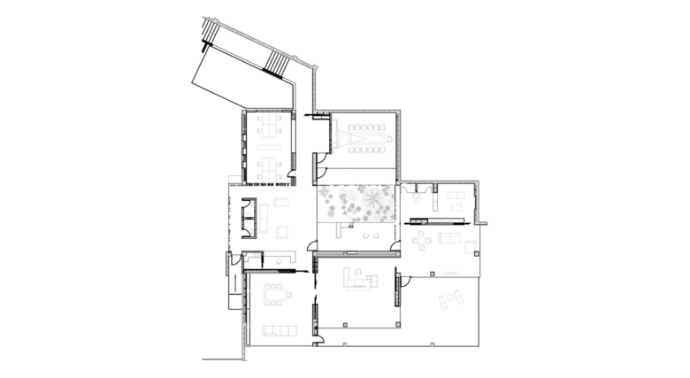
This is an office interior with minimal design and maximum comfort. The waiting room is connected to the courtyard with the same bamboo material, and is surrounded by the secretary room, meeting room, and working rooms which are all in white. The material contrast expresses the definition of public and private space.
Building area
800 sqm
Client
Nanjing Fullshare
- Jahr
- 2010
- Project Status
- Gebaut







