Private House Bellmund
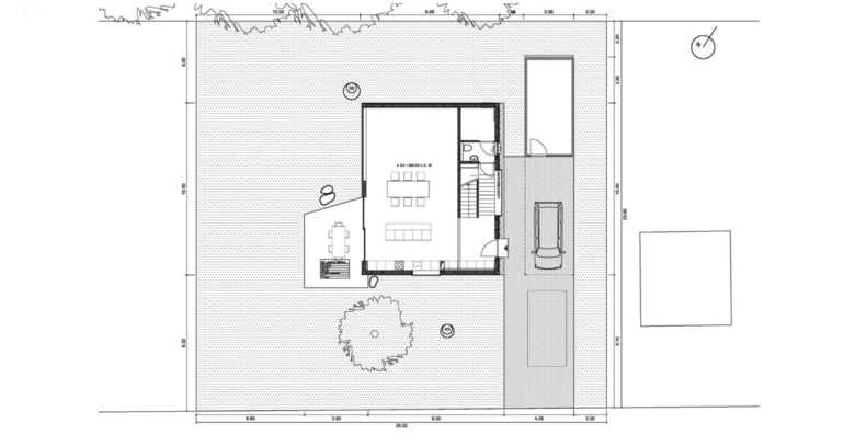
This house for a family of four is located in Bellmund, Switzerland, nearby Biel. Situated on a small plot, the structure’s “house” shape maximizes its height to ensure views of Lake Biennem, while a terrace space is cut from the roof volume. The house has a wood structure, as is usual in Switzerland. The skin is clad in grey industrial panels – a rough and weather resistant material with low costs. In contrast to the modest and functional exterior, the wooden structure is revealed within to give the interior an inviting sense of warmth.
Building area
300 sqm
Client
Private
- Jahr
- 2008
- Project Status
- Im Bau






