Infrastructure and Biofil Toilet Hubs

Lagos, Nigeria
Completed Biofil Toilet Hubs in Daramola, Lagos
Foto © Federation

Since 2017, FABULOUS URBAN in close collaboration with the Nigerian Slum/ Informal Settlement Federation and Justice & Empowerment Initiatives (JEI) has been developing and constructing infrastructure and biofil composting hubs in ten urban slum communities in Lagos.

Funding: private (savings groups, foundations, and individual donors)

Construction site in Daramola
Foto © Federation
Construction site in Itun-Agan
Foto © Federation
Construction site in Orisunmibare
Foto © Federation
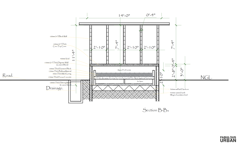
Longitudinal section, infrastructure hub for Daramola
Zeichnung © FABULOUS URBAN
Representatives of the Nigerian Slum/ Informal Settlement Federation and some people of the Lagos team of FABULOUS URBAN on site visit in Daramola
Foto © FABULOUS URBAN
Representatives of the Nigerian Slum/ Informal Settlement Federation and some people of the Lagos team of FABULOUS URBAN on site visit in Daramola
Foto © FABULOUS URBAN
Jahr
2018
Bauherrschaft
Daramola Communities, Orisunmibare Communities, Itun-Agan Communities, Abete Ojora Communities, Ofin Communities, Sabokodji Communities, Baiyeku Communities
Team
Fabienne Hoelzel, Yewande Morris, Abisola Ige
Community liaison and fundraising
Justice & Empowerment Initiatives, Lagos and Port Harcourt (JEI)
Project initiator, constructor and operator
Nigerian Slum/ Informal Settlement Federation
Fundraising platform
I care for you, Switzerland
Funding of project development
Private donors, via "I care for you", Switzerland
Funding of construction materials
Selavip Foundation, Chile

Andere Projekte von FABULOUS URBAN 

Ofin School
Lagos, Nigeria
Advocacy for the people of Precious Seeds, Oworonshoki, violently and forcibly evicted
Lagos, Nigeria
Serra da Cantareira
São Paulo, Brasilien
Mobile Dry Diversion Toilet – Roll-out 2024
Lagos, Nigeria
Reconstruction plan for Precious Seeds, Oworonshoki
Lagos, Nigeria