Umbau Kirschlager

Nuglar, Schweiz
Foto © Mark Niedermann

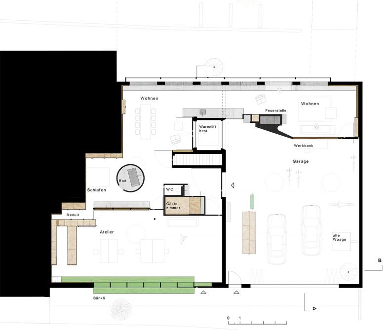
Das Gebäude in Nuglar von 1968 gehörte zu einer Schnapsbrennerei mit Weinhandlung. Das Haus diente als Lagerhaus, als Verkaufsladen und vorallem als Annahmestelle für Kirschen. Der Bau grenzt direkt an die ehemalige Brennerei aus den 1920ern. Als Lagerhaus besitzt der Bau hohe Räume, welche aber kaum miteinander und mit dem Aussenraum verbunden waren. Er bestand ursprünglich aus zwei Hälften, die eine fast durchgehende, tragende Wand trennt, nur verbunden durch den Warenlift. Bei der einen Hälfte kam eine filigrane Holzdecke zum Vorschein, die andere Hälfte besteht aus einer riesigen Garage mit Stahlträgern und Betondecke.
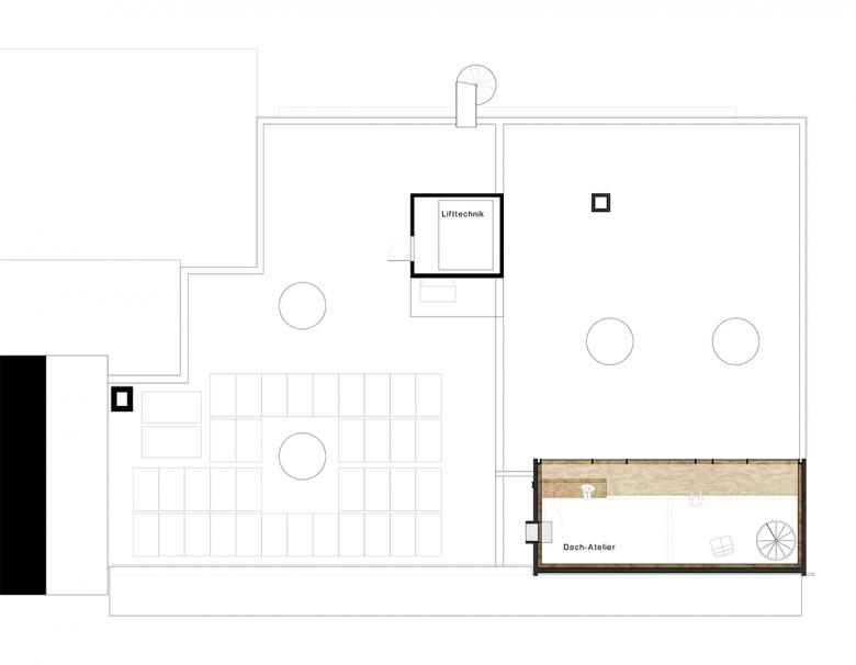
Eine Wohnung und ein Architekturstudio werden eingebaut. Anlieferung und Garage bleiben als Werkstatt erhalten, zusätzlich wird auf die Garage ein kleiner Aufbau gesetzt. Die Zweiteilung des Gebäudes wird talseitig den Fenstern entlang aufgehoben, zugunsten von einem sehr langen schmalen Raum, welcher Küche und Wohnen umfasst. Die bestehenden Fenster mit Brüstungshöhe 2.50m werden auf Sitzbankhöhe heruntergeschnitten. Vor diese Öffnungen wird aussen ein langer Fensterkasten aus Stahl gesetzt.
Innenwände werden entfernt oder mit Öffnungen versehen. Sind diese im Sommer geöffnet, entsteht ein grosser mäandrierender Gesamtraum. Die Halle des ehemaligen Ladens beinhaltet Raummöbel mit Bad, WC, Schränken und Gästezimmer, welche Raumnischen ausbilden und den Gesamtraum in einen Wohn- und Atelierbereich unterteilen.
Zur Strasse hin zeigt sich das Atelier mit einem neuen grünen Fenstermöbel, welches aussen als lange Sitzbank zum Verweilen einlädt.

Das Lagerhaus besteht neben der Holzdecke vor allem aus Beton. Als neue Materialien werden daher Beton und Holz hinzugefügt. Die Schichtung und Fügung des Materials wird immer gezeigt, die Oberflächen sind rau und haptisch. Bestehende Materialien werden nicht saniert, sondern mit all ihren Gebrauchsspuren belassen wie sie sind. Dem alten wird
dadurch lediglich eine neue Zeitschicht hinzugefügt. Sämtliche Holzeinbauten und Türen werden mit dem Schreiner direkt auf der Baustelle gebaut. Feine präzise Detaillierungen stehen der rohen Unmittelbarkeit des Materials gegenüber.

Foto © Rory Gardiner
Foto © Mark Niedermann
Zeichnung © Lilitt Bollinger Studio
Foto © Mark Niedermann
Foto © Mark Niedermann
Zeichnung © Lilitt Bollinger Studio
Foto © Mark Niedermann
Foto © Mark Niedermann
Zeichnung © Lilitt Bollinger Studio
Jahr
2018

Andere Projekte von lilitt bollinger studio gmbh 

Umbau Wohnhaus in Obstalden
Obstalden, Schweiz
Wohnatelierhaus Altes Weinlager
Nuglar, Schweiz
Umbau Ebligen
Oberried, Schweiz