Harumi Residential Towers

Harumi 2-chome, Chuo-ku, Tokyo, Japan
Foto © Ishiguro Photographic Institute

Situated on the waterfront promenade of Tokyo Bay, this project is a focal point for the Harumi district. The buildings are highly visible along the Harumi Canal and from the Harumi Bridge when commuting from the waterfront district toward the center of Tokyo.

The two residential towers of the Harumi 2-Chome Condominium project are each 48 stories tall and contain 1,800 units.  At equal heights of 172 meters tall, the towers capitalize on expansive views of the Harumi Canal stretching off into the horizon.  Oriented North-South as a response to urban planning requirements, the towers create an exceptionally open and liberated residential atmosphere of sky and seascape with views of many significant urban landmarks including the Rainbow Bridge.

As one of the largest and most prestigious undertakings of the Mitsubishi Estate, Co., the Harumi-2 Chome Condominium project is to serve as the flagship of their brand.  Therefore, the pair of towers will be emblematic of Mitsubishi’s commitment to providing metropolitan Tokyo with a more appealing cityscape and alluring image of Japan and aim to serve as a model of their contributions to modern society.

The Harumi 2-Chome project provides a clear expression of form, space and texture using natural materials, light and reflection.  The design is the result of a meticulous process of artistic craft that is in harmony with its cultural and environmental context.

The design is open-ended, neither dictatorial nor perfectly symmetric.  Modular precision temporarily yields to asymmetry, and the man-made is overlaid with ever-changing natural elements to reach balance.  The design gains from the patina achieved with passage of time.

Foto © Ishiguro Photographic Institute
Foto © Ishiguro Photographic Institute
Foto © Ishiguro Photographic Institute
Foto © Ishiguro Photographic Institute
Foto © Ishiguro Photographic Institute
Foto © Ishiguro Photographic Institute
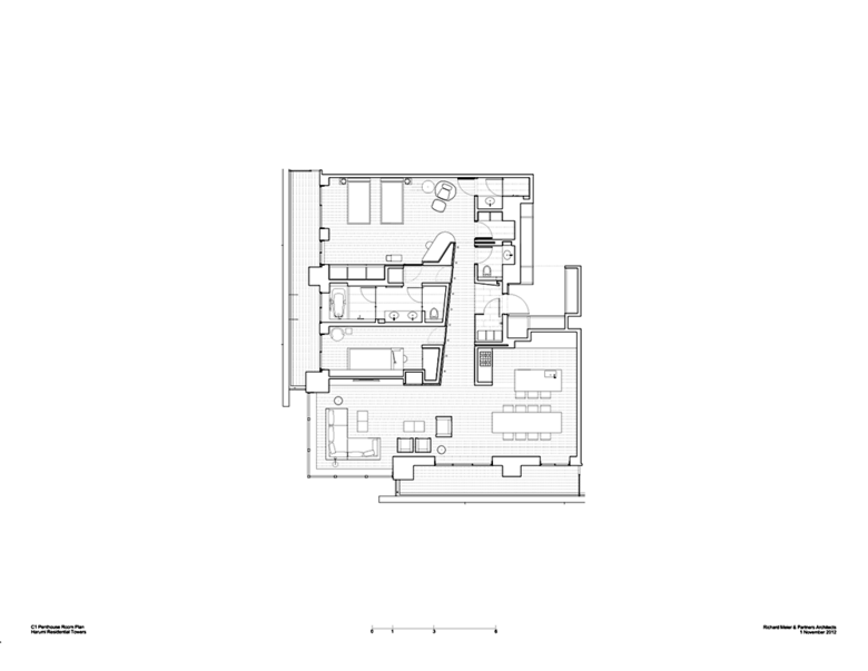
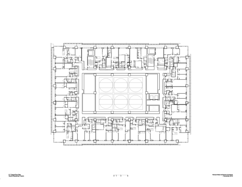
Zeichnung © Richard Meier & Partners Architects
Zeichnung © Richard Meier & Partners Architects
Zeichnung © Richard Meier & Partners Architects
Zeichnung © Richard Meier & Partners Architects
Zeichnung © Richard Meier & Partners Architects
Zeichnung © Richard Meier & Partners Architects
Jahr
2014

Andere Projekte von Meier Partners 

Sorol Art Museum
Gangneung, Süd-Korea
Smith House
Darien, USA
Cittadella Bridge
Alessandria, Italien
Leblon Offices
Rio de Janeiro, Brasilien
Jubilee Church
Rome, Italien