Z33 House for Contemporary Art, Design and Architecture

Hasselt
facade towards the street and entrance
Foto © Gion B. von Albertini

Name of work in English
Z33 House for Contemporary Art, Design and Architecture

Name of work in original language
Z33 Huis voor Actuele Kunst, Design & Architectuur

Placement
Finalist

Prize year
2022

Year completed
2019 (Year began 2017)

Authors
Francesca Torzo (1975 Italy)

Collaborators
Collaborator (office): Marco Guerra, Riccardo Amarri, Pablo Brenas, Lorenzo Gatta, Liaohui Guo, Cyril Kamber, Besart Krasniqi, Antoine Lebot, Jovan Minic, Andrea Nardi, Anna Oliva, Anna Optiz, Costanza Passuello, Alessandro Pecci, Domenico Singha Pedroli, Nicola Torniamenti, Gion Von Albertini, Előd Zoltan Golicza THV Houben Belemco (contractor Houben): Kristof Mutert THV Houben Belemco (contractor Belemco): Michiel Wielockx Conzett Bronzini Partner (facade structural advisor): Gianfranco Bronzini Lighting: Ben Boving Petersen Tegl (brick advisor): Christian A. Petersen Bekaert (reinforcement advisor): Christian Vanneste Knauf (mortar advisor): Mansour Marchouh Omnicol (mortar advisor): Paul Van Erp Weber (pigmented mortar advisor): Stephan Piquer Reynaers (window advisor): Stephen Daems Imtech (air installations advisor and subcontractor): Wilfried Bleus, Quirijn Jammaer Izé (iron and handles advisor): Dave Bradshaw ABT NL (stability): - - ABT NL (local administrative manager): - -
Program
Culture
Labels
Art Gallery, Exhibition

Total area
12282 m2

Usable floor area
4964 m2

Cost
1500 €/m2

Client
Z33 and Provincie Limburg

Client Type
public

Map
LatLng: (50.9325398, 5.339934)

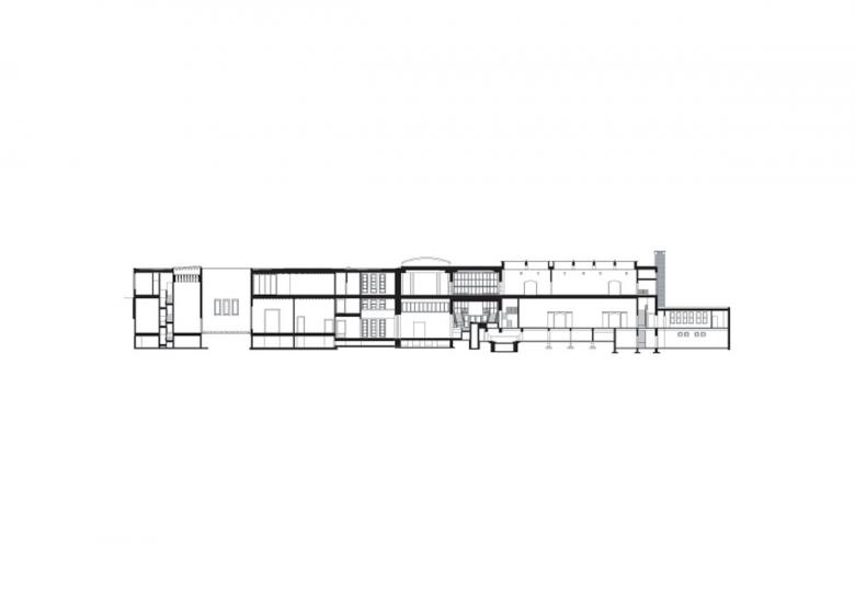
Z33 settles in continuity with the existing buildings around the béguinage, echoing the dual character of their facades, enclosed towards the street and open with windows’ filigrees towards the garden. The exhibition rooms and the secret gardens compose a spatial labyrinth, amalgaming memories of local passages with ones of foreign villas or palaces. Hasselt béguinage is alike a city in the city. The garden is enclosed by a wall of heterogeneous brick buildings, a place of rest. Z33 is part of this continuous border, as one building made of two: the 1958 existing museum and its extension. Alike the other buildings surrounding the garden, the extension building disposes a long and almost blind brick wall towards the street, echoing Roman opus reticolatum, and displays a score of windows towards the garden. The new wing interior scenography alternates rooms and gardens, offering a plurality of views and parcours similarly to what happens in a city; here rooms are specific in size, proportion and natural lighting, different from the existing wing classical setting, which has been appropriated as an ideal “white cube”. The slender section of the thresholds between spaces do not reveal the real thickness of the walls, so that rooms belong one to another. The process begun from observing the “cultural structure” of the place, meaning the permanencies that cannot be ascribed to a language or a form, though express the relationships between human constructions and a topography and among the constructions themselves. They seem to result from building gestures being repeated over centuries. Hence the strategy was simple: to build in continuity with the cultural structure of Hasselt béguinage, though with a different language and different material means. The process started much earlier than the competition, making converge public actors in a common vision. The international competition was in three steps: 1st screening the teams economical and professional profile; 2nd presenting a text - no design yet - stating the attitude towards the historical context, the space for art and the process management; 3rd the design proposal. We proposed very early a radical redistribution of the budget, combining conventional ways of building with experimental ones. Two public tenders followed, with low budget. The awarded contractor started in June 2017 and ended in November 2019: 365 working days, within time and budget frames. The budget for this ambitious public assignment was low - 7 million € for 4600 sqm (approx. 1500 €/sqm). So from the early stage of the competition, we proposed a screening of architectural details in scale 1:20 and of the installations arrangement strategies. Clay, concrete, lime are all local materials with whom builders are familiar. The new building is a simple concrete structure with non-exceptional spans, where experimentation is specifically and punctually chosen: the jointless load baring masonry façade, one cast in situ lacunar ceiling (beams section between 4-15 cm, height 160 cm), the cast in situ diamond ceiling and the integrated displaced ventilation. All non-conventional details have been developed during definitive design phase as preparation for the public tender. The façade is the most significant example and it can be shortly described as a reinforced layered solid masonry wall, jointless and without cavity so that a brick wall may sound as a full one. 3 years of study, 68 brick colour tests, 20 mortar tests, 103 brick types, 34.000 bricks, 5 mm displacement, 3 mm tolerance, 2 man making bricks, 5 man building façade, (almost) infinite drawings.

view on the entrance patio and roof garden
Foto © Gion B. von Albertini
threshold between the “gallery” and the “lac” exhibition rooms
Foto © Gion B. von Albertini
public staircase handrail detail
Foto © Gion B. von Albertini
view on the Jenever Museum and the old Béguinage from an exhibition room
Foto © Gion B. von Albertini
béguinage site plan
level 0 floor plan
level 0.5 floor plan
level 1 floor plan
section
elevations
brick atlas
facade detail
Architekten
Francesca Torzo Architetto
Standort
Hasselt
Jahr
2019

Dazugehörige Projekte 

  • HOMAG Campus Schopfloch
    blocher partners
  • Penthouse FR
    MR Design Studio | Product and Interior design
  • Rodari Primary School
    C+S Architects
  • Rosenberghalde
    freiraumarchitektur
  • Fusion
    SNOW ARCHITEKTUR

Magazin