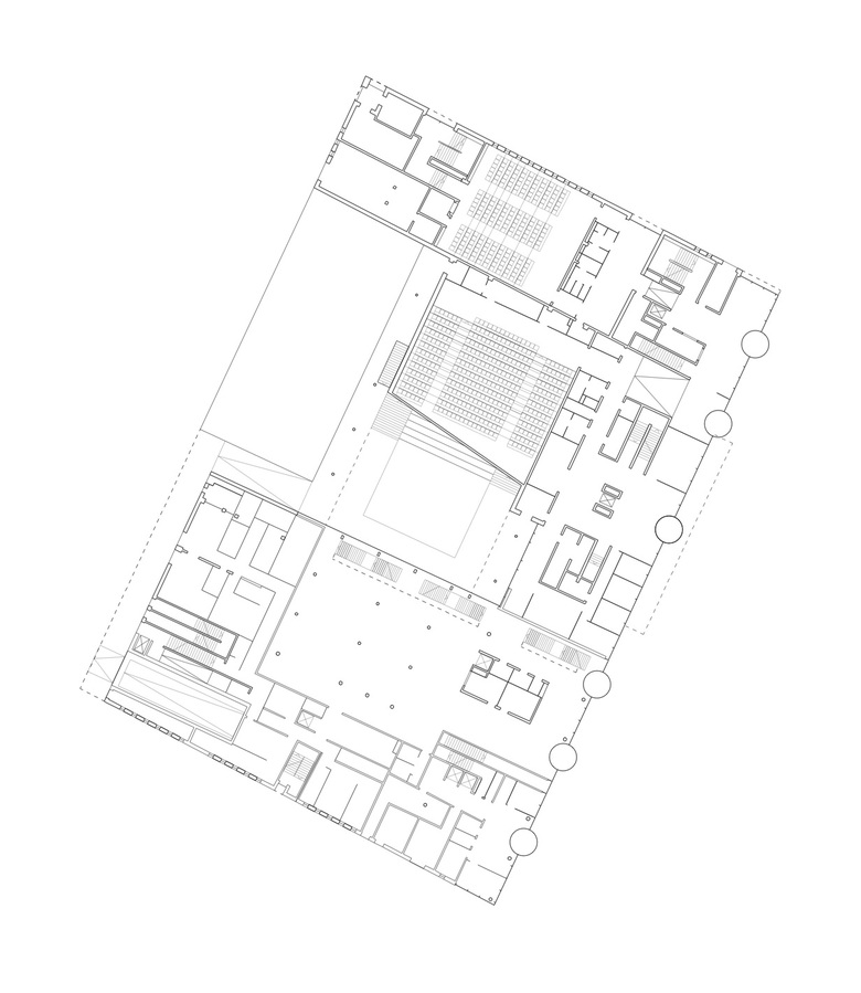
University Centre Lyon
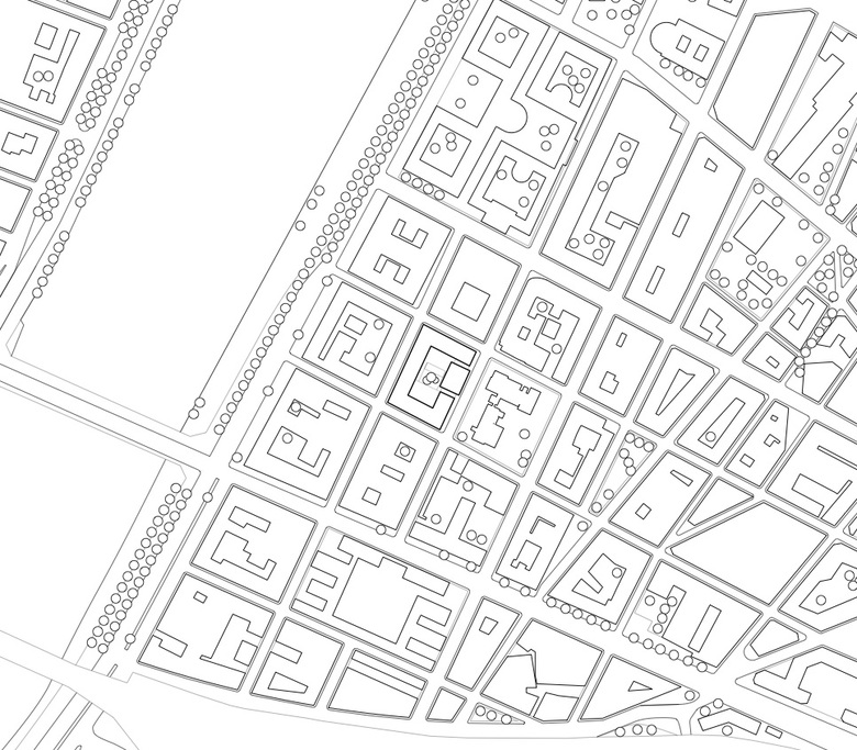
The "Pôle universitaire des Quais" is located in the university district on the eastern bank of the river Rhône in the 7th arrondissement of Lyon and comprises of five institutions: The Institute of Technology (IUT) for around 900 students; The Department for Research and Higher Education (PRES); A canteen with a capacity of approximately 1,900 meals; A dormitory compromising of 200 beds; The International House of Languages and Cultures
Client
Rectorat de l‘Académie de Lyon,
Crous de Lyon, Saint Etienne
Gross area
17.850 m2
Gross volume
71.164 m3
Performance levels
Generalplanung
Mission de base MOP complète,
entspr. Lph 1 – 9 HOAI
Partner
Arodie Damian Architectures, Paris
- Year
- 2015











