Librairie Avant-Garde,Ruralation Library
Located in Daijiashan Village,Eshan She Nationality Township of Tonglu, Zhejiang Province, the Avant-Garde Ruralation Library is the 11th Bookstore run by the Librairie Avant-Garde. With the culture-spreading idea ——Avant-Garde and Library, as well as the unique regional natural and human landscape of the ‘Shes’ village, this project has become the public life bond among local villagers and alien readers, and also become a a focal point of local cultural and creative industries. The main body of the library was an idle yard lying at one side of the village’s main street, including two yellow mud adobe houses and a platform projecting from a slope. While maintaining the structural and spatial sequence of the buildings and courtyards, the architectural design restores the current declined status to a healthy state. The relationship between the new and the old strengthens the ‘timing’. The carriers of time and memory – the adobe walls, tile roofs and roof trusses have become the spatial dominance, and have jointly created context-continuing contemporary local aesthetics, together with the publicity of function regeneration.
The Chinese thousands-of-year tradition roots in agricultural civilization. The authentic Chinese architectural tradition lies in the rural settlement, the organic and integral urban-rural relations, as well as the continuing development model lasting for thousands of years, which is a sort of territoriality based on ‘cultural consciousness’. Our thinking focuses on the fundamental aspect ‘time’. The touching built environment characteristics in any area are the strength of time depositing. Comparing with the irresistible ‘time’, the ‘space’ design meticulously constructed by architects tends to be more personalized, and cannot face the challenge of life.
In the Avant-Garde Ruralation Library renewal project, the creation of architectural space i.s strictly constrained, and carefully made as an imperceptible time ‘rest’. The new elements including courtyard corridors and interior facilities are attenuated by their pure form. Equally important, these subtle formal elements – which also are the industrialized and productized addition, is crucial relating to the contemporary function of libraries. The re-established spatial boundaries of the ‘old’ building created by the ‘new’ elements re-direct the past time to reality. From the construction process to the cultural management integrating into the rural life, the ‘new’ and the ‘old’ together contribute to a stage of life scenarios, rather than an abstract purified spatial definition.
To adapt to the new function of the library, the most critical design strategy is to lift up the roof. The internal beam-column frame which supports the roof has been heightened by 60cm as a whole. Taking the advantage of the increased height, the high windows can be constructed; thus light, air and the beautiful bamboo forest landscape are naturally introduced into the interior reading space. The realization of the roof uplifting mainly relies on the local craftsmen’s traditional skills – extending partial columns by the means of crafty tenon skill. Parallely the renovation of the grey-tile roof is undertaken; the thermal insulation construction attached to the sheathing has greatly improved the thermal performance of the old building. Outside the building, due to the high windows the original adobe walls and grey-tile roof take on a dramatic performance -- closed and open, heavy and light, forming a gentle landscape focus of the village against the background of the trimmed outdoor landscape and lighting design.
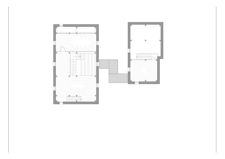
The permeable wooden grille corridor linking the main room and the partial room is able to strengthen the functional connection between the renewed library and the café, and also to redefine the sensitive experiencing sequence of the outdoor space. In between the streets, the stairs and the corridor, a compact and friendly front yard is situated; passing through the tortuous corridor, or coming out from the inside of the building, the building, the corridor and the arc-profiled platform come into sight, which together define the outdoor reading space. Inside the building, the well-organized stairwell, partial platform, and permeable bookshelf partition contribute to spatial publicity; the renovated wooden roof structure forms a bright and powerful space atmosphere by means of intensifying the lighting.
The most common brick masonry structure is applied to the café foyer added within the partial room on the east side, the stairs and the toilets constructed in the main room on the west side. Its independent foundation treatment has a reinforcing effect on the main structure of the original building. With the highly-attenuated form of industrial products, the newly-built interior walls, floors, stairs, furnishings and other facilities define the time boundaries of the traditional building, and form the regulating mechanism of the contemporary new function; thereby the space is enabled to accommodate continuing and developing contemporary regional life experience.
- Year
- 2015
- Project Status
- Built
- Team
- Zhang Lei, Liu Wei, Ma Haiyi, Chen Junjun, Zhang Qilin, Shao Xuan
- Construction drawing design
- ADI-NJU















