NO.5 Appartment interior design

番禺路, 200024 Shanghai, China
户型原状
Drawing © BTA

We moved with cats from Beijing to an appartment in Shanghai built in the 1980s. The living space shrank from 60 square meters to just 40, yet We hope that we could design the interior based on the lifestyle, that we had grown in Beijing. Together with the cats, we began adapting to this new and smaller home.

The layout of the appartmen is a long, narrow strip with the entrance in the middle. The entryway and central dining area are noticeably dim, in stark contrast to the bright rooms at either end. This gives the dining area a rather passive spatial quality. The key challenges were how to reorganize the spatial relationships to improve the first impression upon entering, and how to balance and define the various functional zones of daily life—so that the space could be both simple and rich with interest.

The lifestyle elements grown in Beijing
Drawing © BTA
Getting new spacial identity
Photo © BTA
Redifining the dining area as traffic space
Photo © BTA
The transformaion of lifestyle elements
Drawing © BTA
View from kitchen to corridor
Photo © BTA
View from corridor to kitchen
Photo © BTA
Entrance way
Photo © BTA
corrdor2
Photo © BTA
corridor1
Photo © BTA
View from working area to bedroom
Photo © BTA
View from working area to bedroom 2
Photo © BTA
Cat's tent 1
Photo © BTA
Cat's tent 2
Photo © BTA
Working area
Photo © BTA
Cat's tent 3
Photo © BTA
Cat's tent 4
Photo © BTA
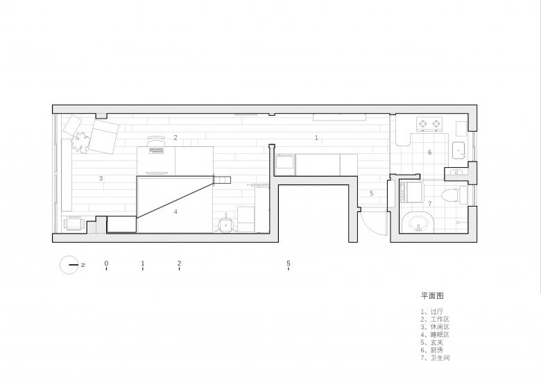
Floor Plan
Photo © BTA
illustration
Drawing © Yue Qi
Year
2025

Other Projects by beyondtime architects 

Service Center of Peony Performance Park
Fuzhou, China
Faro interior renovation
Beijing, China
Nanliang Workshop
Beijing, China
Nanliang Boutique Inn
Beijing, China
Products Collection