CCIL Campus

Chicago, IL, USA
Photo © Bill Zbaren

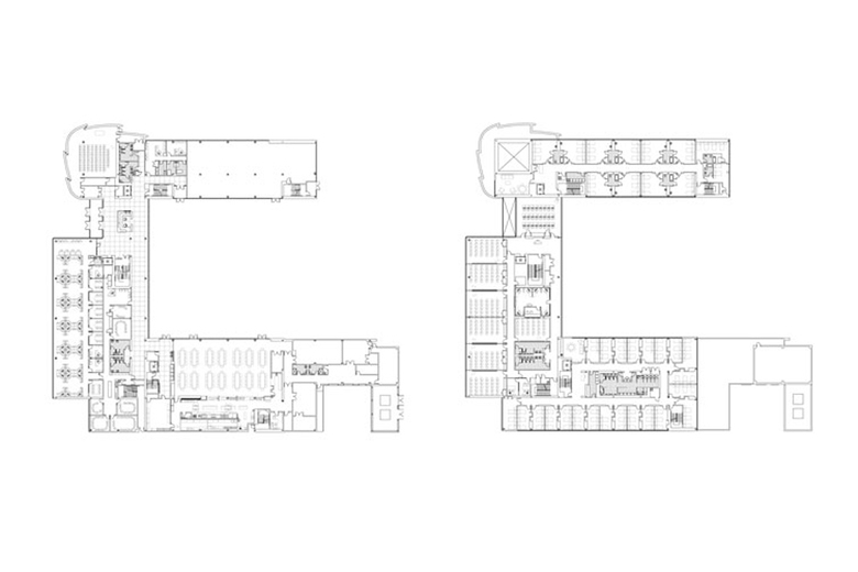
The Chicago Christian Industrial League, a provider of social services, commissioned Krueck and Sexton to design a new campus for re-location and expansion. Located in Chicago's Lawndale neighborhood, the 125,000 square foot mixed-use program includes housing for families and single men and women, as well as social services, training classrooms, administration and support.

The image of the campus is that of a welcoming and modern organization, dedicated to improving the lives its clients. A landscaped courtyard creates an inward focus appropriate for activities requiring privacy and protection, such as daycare and housing.

Energy efficiency, a green roof, recyclable materials, natural stormwater management and other sustainable design principles are an integral part of the project.

Photo © Bill Zbaren
Photo © Bill Zbaren
Photo © Bill Zbaren
Photo © Bill Zbaren
Drawing © Krueck + Sexton
Drawing © Krueck + Sexton
Year
2006

Other Projects by Krueck Sexton Partners 

Phillips Plastics Molding Facility
Phillips, WI, USA
A Transparent House II
Gulfcoast, USA
1100 First Street
Washington, DC, USA
Spertus Institute
Chicago, IL, USA
Benjamin P. Grogan and Jerry L. Dove Federal Building
Miramar, FL, USA