M8 Work & Create
Das Bürogebäude M8 (Mühldorfstraße 8) befindet sich im Münchner Osten am Rande des dynamischen Werksviertels. Das Grundstück hat eine Größe von ca. 4.700 m² und liegt zwischen den Meisterschulen und zukünftigen Neubauten. Aufgrund der Lage in zweiter Reihe zur Friedenstraße und der gleichförmigen postmodernen Architektur im direkten Umfeld sollte der Neubau einen auffälligen Kontrapunkt im Erscheinungsbild darstellen. Das gestalterisch anspruchsvolle und maximal flexible Bürogebäude passt sich in der Höhenentwicklung den beiden Nachbarn an. Die Kubatur des Gebäudes mit Seitenlängen von 76 m, bzw. 46 m nutzt das Grundstück optimal aus. Die historisierende Fassade lehnt sich bewusst an die Gewerbearchitektur des 19.Jahrhunderts an. Die Architektur spannt den Bogen vom Industriebau über das Kontorhaus bis in die Neuzeit. Die sorgfältige Proportionierung und die feine Gliederung der Fassade verleihen dem Baukörper eine strenge Leichtigkeit. 44 Rundbögen fassen Erdgeschoss und erstes Obergeschoss und harmonieren mit der horizontalen Betonung der Regelgeschosse. Die Gestaltung mit rot-braunen Ziegeln und großen Fensterflächen interpretiert traditionelle Klinkerfassaden neu. Lisenen in jeder Achse betonen das elegante Erscheinungsbild. Nach außen wirkt das Gebäude geschlossen und introvertiert, jedoch eröffnet sich hinter den Bögen eine vollkommen neue Welt.
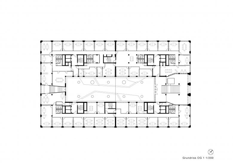
Architekturprägend ist ein zweigeschossiges Foyer mit Cafébar, welches nahezu die gesamte Breite des Gebäudes einnimmt, und über eine imposante Treppe in einen im ersten Obergeschoss verorteten Hochgarten übergeht. Schwarz-weiß Kontraste, Sichtbeton und schwarzer Stahl bestimmen die Innenarchitektur um einen Gegenpol zur Fassade zu setzten.
Das Foyer und der Innenhofgarten bieten Raum für alle Nutzer und übernehmen eine wichtige Verteilerfunktion im Gebäude. Als besondere Zugabe gibt es eine spektakuläre 10m hohe und 31m lange Rutsche vom vierten Obergeschoss in den Hof. Funktional ist das Gebäude für einen Einzelnutzer oder mehrere unterschiedliche Nutzer ausgelegt. Die Bürogeschosse zeichnen sich durch frei teilbare Flächen und eine großzügige natürliche Belichtung aus. Mieteinheiten lassen sich von 400 m² bis 3000 m² je Geschoss zusammenschalten.
Flexibilität in der Nutzung, zeitlose Ästhetik und neue technische Erkenntnisse sind die Grundlage für einen langen Lebenszyklus des Gebäudes. Hauptaugenmerk wurde beim M8 auf die Ausgewogenheit zwischen ökonomischer und ökologischer Nachhaltigkeit gelegt.
- Year
- 2021













