the-view-from-sofa-to-windows
Photo © BTA
We got to know about the value of the clients and the understood of the design from this stone. The fond, imagination and memory of the time and nature offers the inorganic stone an organic quality, that also results from the interaction between the live and environment. This understood of the object influences us the composition of the rooms and the use of the materials: How to build the connection between rooms to take on the interaction of daily life; as well as to introduce a material to be growing up with the life in the future.
the-view-from-study-to-living-room
Photo © BTA
the-view-from-livingroom-to-sitting-zone
Photo © BTA
vegetation-zone-3
Photo © BTA
sitting-zone-2
Photo © BTA
the-opened-shelf-1
Photo © BTA
the-opened-shelf-2
Photo © BTA
the-view-from-hall-way-to-vegetation-zone
Photo © BTA
the-view-from-sofa-to-dining-table
Photo © BTA
the-view-from-dining-table-to-vegetation-zone
Photo © BTA
the-view-from-spare-room-to-sofa
Photo © BTA
the-sequence-space-by-the-windows
Photo © BTA
the-view-from-sink-to-coffee-area
Photo © BTA
the-view-from-kitchen-to-dining-room
Photo © BTA
the-view-from-dining-table-to-coffee-area
Photo © BTA
the-corten-steel-side-table-sil-and-skirting-board
Photo © BTA
the-corten-steel-drawer-and-wall-panel
Photo © BTA
the-corten-steel-flower-bed-and-rack
Photo © BTA
the-corten-steel-flower-bed
Photo © BTA
the-corten-steel-shelf-board
Photo © BTA
exploded-drawing-of-spritural-space-by-the-window
Drawing © BTA
the-analysis-of-the-view-in-open-space
Drawing © BTA
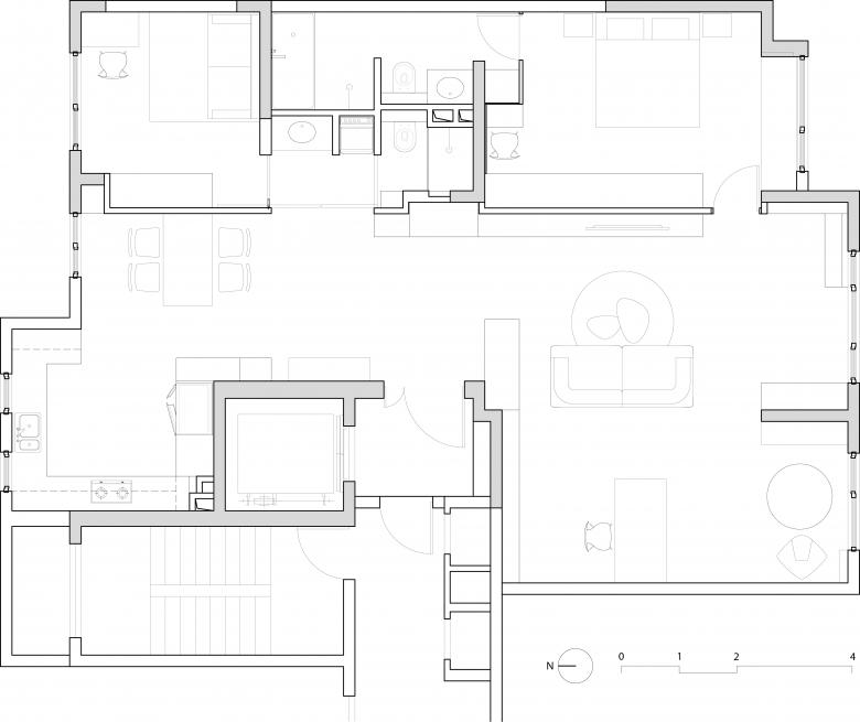
plan
Drawing © BTA