Monte Alegre
Porto, Portugal
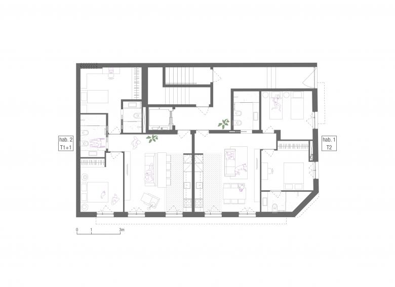
Located in the parish of Cedofeita, in the city of Porto, Monte Alegre is on a quiet corner, 20 minutes’ walk from Lapa station and from the Marquês square.
The building has two fronts: one facing Rua da Aliança, a silent street with small buildings, and another facing Rua Monte Alegre, which is also essentially residential. The elevations were designed based on the need for a more uniform urban language and seek to take advantage of adjacent alignments, filling the front of the corner and enhancing the relationship between neighboring buildings.
Both elevations are very sunny (west and south). The corner solution has a slightly sloping edge that gives the building its identity and a certain originality – although it is well integrated with the other buildings at the intersection of Rua da Aliança and Rua Monte Alegre.
This shy formal freedom of Monte Alegre is the result of its location: the plot is immediately outside the historic center or, better said, at the beginning of the 20th century city. It is an “urban front in consolidation”: a transition zone, where some compositional exercise is already possible, even if with the second intention of sewing and bridging the urban front of its neighbors.
- Architects
- Vazio S/A
- Year
- 2021
- Project Status
- Design
- Team
- Carlos M Teixeira, Daila Coutinho, Frederico Almeida, Marcus Barbosa






















