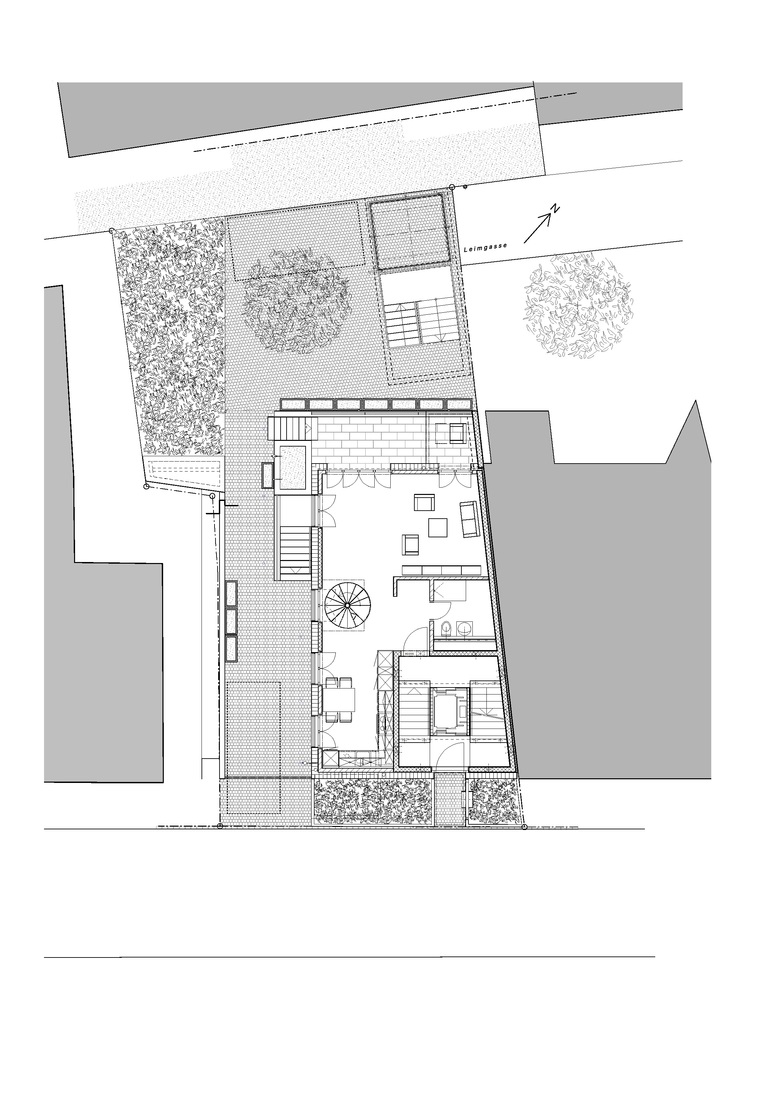
Neubau Mehrfamilienhaus, Zürich

Photo © Michael Reinhard
Photo © Michael Reinhard
Photo © Michael Reinhard
Photo © Michael Reinhard
Photo © Michael Reinhard
Year
2011

Other Projects by Rafflenbeul + Partner Architekten AG 

Sanierung Bernhard Theater Zürich
Fassadensanierung Werkstättengebäude, Opernhaus Zürich
Zürich
Neubau Büro- und Werkstättengebäude, Zürich
Zürich, Switzerland
Umbau und Erweiterung Restaurant Belcanto, Opernhaus Zürich
Zürich, Switzerland
Einbau Orchesterproberaum in Wissenschaftliche Kirche Kreuzplatz
Zürich, Switzerland