Dafen Art Museum
Dafen village is in Buji Township, Longgang District, Shenzhen. Best known for its replica oil painting workshops and manufacturers, its exports to Asia, Europe and America bring in billions of RMB each year to the area.
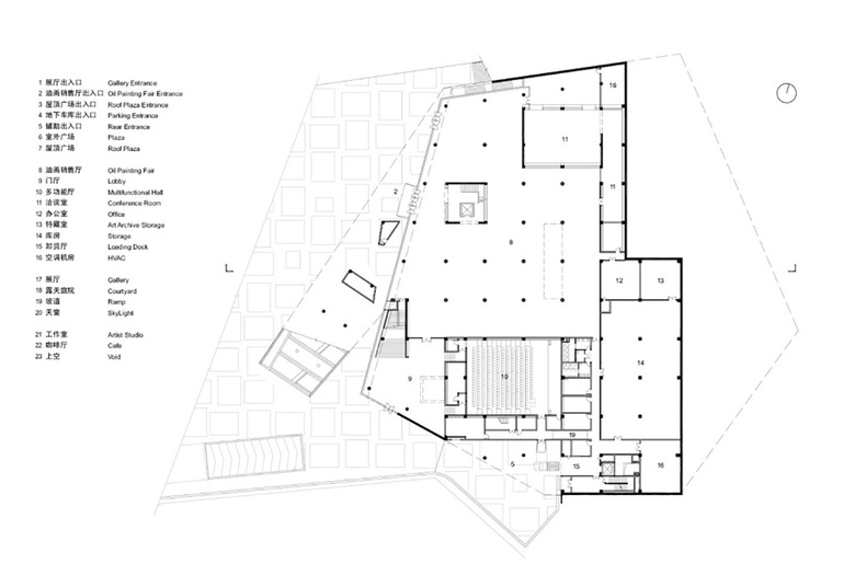
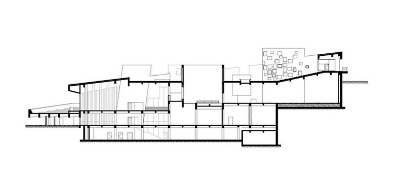
Our concept focuses on reinterpreting the urban and cultural implications of Dafen Village, which has long been considered as a strange mix of pop art, bad taste, and commercialism. A typical art museum would be considered out of place in the context of Dafen’s peculiar urban culture. The question is whether or not it can be a breeding ground for contemporary art and take on the more challenging role of blending with the surrounding urban fabric in terms of spatial connections, art activities, and everyday life.
Therefore our strategy is to create a hybridized mix of different programs, like art museums, oil painting galleries and shops, commercial spaces, rental workshops, and studios under one roof. It also creates a maximum interaction among people by creating several pathways through the building’s public spaces.The museum is sandwiched by commercial and other public programs which intentionally allow for visual and spatial interactions among different functions. Exhibition, trade, painting, and residence can happen simultaneously, and can be interwoven into a whole new urban mechanism.
Principal Architect: Meng Yan
Project Architect: Chen Yaoguang, Fu Zhuoheng
Team: Zhang Yu, Ji Yuyu, Shen Yandan | Liu Xiaoqiang, Ding Yu
Project Location: Dafen Village, Longgang District, Shenzhen
Project Period: 2005-2007
Project Status: Completed
Site Area: 11,244㎡
Floor Area: 17,000㎡
Client: Longgang District Government, Shenzhen
(LDI) Structure/ MEP (Mechanical, Electrical, Plumbing) Collaborator: ShenZhen New Land Tool Planning & Architectural Design Co. Ltd
Photographers: Meng Yan, Ju Bin, Yang Chaoying, Wu Qiwei, Chen Jiu
- Year
- 2007













