Offene Ganztagsschule Köln-Bayenthal

Cäsarstraße 21, 50968 Köln, Alemania
© Rainer Mader

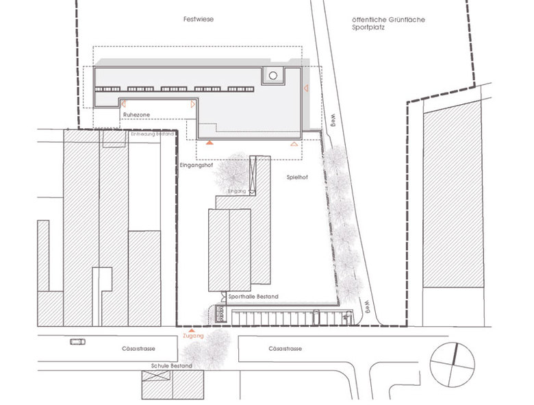
Der für den Erweiterungsbau der Gemeinschaftsgrundschule zur Verfügung stehende Bauplatz befindet sich auf dem Grundstück einer vorhandenen Schulsporthalle, welche dem bestehenden Schulbau gegenüber liegt. Im Norden des Grundstücks schließt eine großzügige, städtische Festwiese an, welche den Blick auf die Matthiaskirche freigibt. Eine alte Platane hinter der bestehenden Sporthalle markiert den Zugang und wird Ausgangspunkt des Entwurfskonzepts. Ziel des Entwurfes ist es, im Dialog mit dem bestehenden Klinkerbau der Sporthalle rund um die alte Platane ein Ensemble zu schaffen, welches den bestehenden verborgenen Hinterhof in eine kleine urbane Situation aus Straßen, Räumen und Plätzen überführt. Der Neubau ist janusköpfig. Nach Norden wird eine präzise Raumkante gesetzt, welche den Rand der Festwiese markiert. Ein einziger Einschnitt im Volumen markiert die Sichtbeziehung zum Kirchturm vis-à-vis. Nach Süden ist der Baukörper skulptural geformt. Vor-, Rücksprünge und Auskragung markieren Platzraum und Eingang. Die Materialgleichheit aller Flächen unterstützt die Skulpturalität des Baukörpers. Die Idee des „Verborgenes sichtbar Machens“ wird mit dem gelben Klinker fortgeführt. Es zitiert die Materialisierung des Inneren der Sporthalle. Dem Bild der kleinen Stadt entsprechend werden Qualitäten somit erst beim genauen Hinsehen und/oder Bewohnen sichtbar. Besucher und Nutzer des Neubaus werden zunächst durch die kleine Eingangshalle aufgenommen, von welcher aus sie sich in die einzelnen Räume und Geschosse verteilen. Der gesamte OGTS Bereich mit Betreuungsräumen und Speisesaal, sowie die zugeordneten Funktionsräume befinden sich im Erdgeschoss, zusätzlich oberbelichtete Klassenräume und Lehrerzimmer sind im Obergeschoss untergebracht. Alle Wandflächen der Wege und Gemeinschaftsräume sind ebenfalls aus gelben Klinker erstellt. Lediglich die Klassenräume sind auf Wunsch der Nutzer „neutral“ weiss verputzt. Farbige Kuben markieren jeweils die Klassenzugänge. In den Treppenräumen wird durch die Verwendung des Klinkers auch als Bodenbelag ein Spiel aus Material, Licht und Bewegung provoziert und somit das Haus auch zur Architektur-Schule.

Aufgabe
Erweiterungsgebäude der Gemeinschaftsgrundschule Cäsarstrasse mit Offener Ganztagsschule

Auftraggeber
Stadt Köln, vertreten durch die Gebäudewirtschaft der Stadt Köln

Verfahren
Direktauftrag 2006, LP gem. HOAI: 1 -5

BGF BRI HNF
2.110 qm 8.200 cbm 1.003 qm

Projektkosten
4,0 Mio €

Planungszeit
2006 - 2009

Bauzeit
2008 - 2009

Planungsbeteiligte
H&P Bauingenieure GmbH & Co. KG, Köln; Ausschreibung und Bauleitung
IDK Klein Johann GmbH & Co. KG Köln; Tragwerksplanung
Becker Ingenieure, Köln; Technische Gebäudeausrüstung
ADU cologne GmbH Institut für Immissionsschutz, Köln; Bauphysik
Planungsgruppe Grüner Winkel, Nümbrecht; Landschaftsplaner

Team gs : a
Prof. Gernot Schulz, Raphaella Burhenne de Cayres. Ruth Gierhake, Annegret Kufferath, Olivera Obadovic, Marcus Wagner, Andre Zweering

© Rainer Mader
Foto © Rainer Mader
© Rainer Mader
© Rainer Mader
Dibujo © gs : a
© Rainer Mader
Año
2010

Otros proyectos de gernot schulz : architektur gmbh 

Bildungslandschaft Altstadt Nord
Köln, Alemania
„Haus Altenberg“ Neustrukturierung, Sanierung und Erweiterung der Jugendbildungsstätte des Erzbistum Köln
Odenthal-Altenberg, Alemania
Grüne Moschee Ruhr
Bochum, Alemania
Open Office: neu Arbeitswelten
Köln, Alemania
Firma Philipp Hafner GmbH & Co. KG
Fellbach, Alemania