Gebäudekomplex Eckernförder Straße 2-77
Eckernförderstraße 2 - 77, Hamburg- Altona, Alemania
Modernisierung eines 70er Jahre Ensembles, Hamburg-Altona | Quartier Vollsanierung 1.2.3. BA
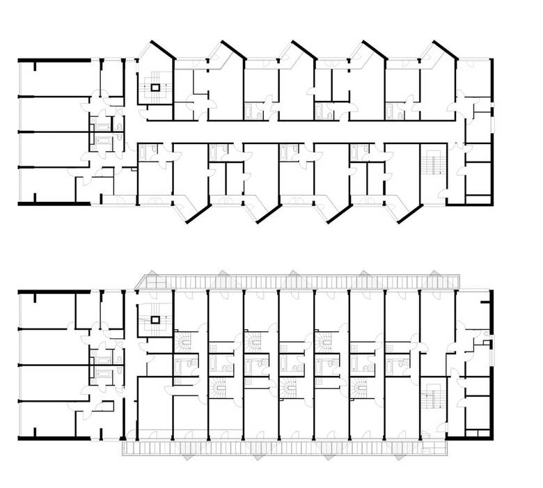
Der Gebäudekomplex Eckernförder Straße 2-77 in Hamburg-Altona wurde zu Beginn der 1970er Jahre in Großtafelbauweise mit Sichtbetonfassaden errichtet und gliedert sich in drei Blöcke, die einen kompletten Straßenzug bilden. Die Eigentümerin der Gebäude, die SAGA Siedlungs-Aktiengesellschaft, hat das Büro czerner göttsch architekten gmbh beauftragt, eine abschnittsweise Modernisierung durchzuführen, die sämtliche Belange der Energieeinsparung, der Bauphysik, des Brandschutzes sowie der Konstruktion und der Gestaltung betrachtet.
Darüber hinaus ist eine Sanierung der Technikstränge und sämtlicher Bäder vorgesehen. Die Modernisierung des ersten Bauabschnitts ist bereits abgeschlossen. Das 18-geschossige Hochhaus mit 137 Wohnungen am stark befahrenen Ring 2, Alsenstraße wirkt mit seiner neuen Gestalt weit in den Straßenraum und stellt eine beeindruckende Landmarke im Stadtbild Altonas dar. Die Architekten haben die komplexe Aufgabenstellung genutzt, um neben der Bearbeitung der technischen und sicherheitsrelevanten Inhalte eine architektonische Aufwertung vorzunehmen, die die Bewohner mit Stolz auf ihr in Weiß- und Goldtönen erstrahlendes Zuhause blicken lässt. Das Gebäude hat eine komplette Überformung erfahren, indem zugige und undichte offene Loggien mit fl exiblen Falt-Schiebefenstern geschlossen wurden, die den Freisitz nach Belieben als Wintergarten oder als Loggia nutzbar machen. Eine vorgehängte, hinterlüftete Fassade aus mehrfarbig beschichteten Aluminium-Paneelen mit lebhafter horizontaler Gliederung verwandelt den in die Jahre gekommenen grauen Betonriesen in einen Eleganz und Selbstbewusstsein ausstrahlenden Solitär. Die neue wärmegedämmte Hülle ist wie ein Tuch über das Gebäude geworfen worden, so dass die zerklüfteten Fassaden beruhigt und die durch zahlreiche Vor- und Rücksprünge verursachten Wärmebrücken und Undichtigkeiten geheilt werden konnten. Die aus Brandschutzgründen in vier Geschossen angedockten Fluchtbalkone aus Stahl fügen sich harmonisch in das Gesamtbild ein und beleben die jetzt gut proportionierte Textur des Baukörpers.
- Arquitectos
- czerner göttsch architekten
- Año
- 2017
- Project Status
- Construido
- Cliente
- SAGA Siedlungs-Aktiengesellschaft
- BGF
- 32.000 qm
- Wohneinheiten
- 373
- BGF Gewerbe
- 5.000 qm
- Aufgaben
- Tiefgarage energetische Vollsanierung, Um- und Erweiterungsbau in bewohntem Zustand
Proyectos relacionados
Magazine
-
-
Voto para Edificio del Año
An Architecture of 'Quiet Narrative'
SOSOKKI ANAC / Gi-Tae Chung | 30.03.2026













