Alterssiedlung Feldblume Zürich

© farblabor
© farblabor
© farblabor
© farblabor
© farblabor
© farblabor
© farblabor
© farblabor
© dja
© dja
© dja
Anno
2010
Auftraggeber
Stiftung Alterswohnungen SAW
Landschaftsarchitektur
Studio Vulkan
Baumanagement
Bosshard und Partner Architekturbüro
Wettbewerb
2007, 1. Preis
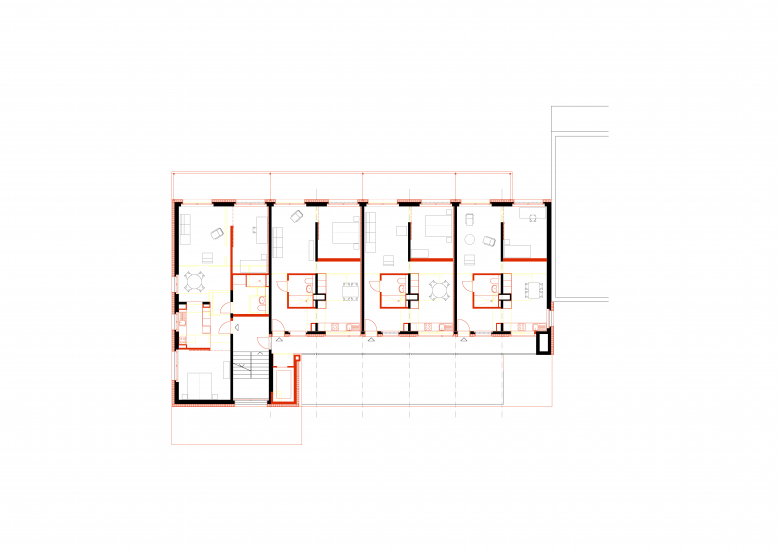
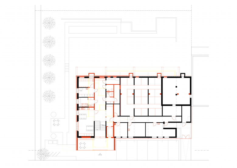
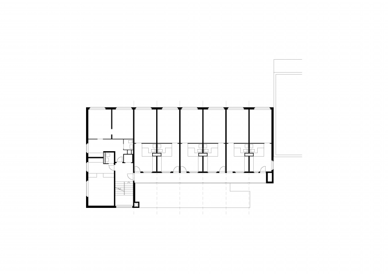
Aufgabe
Gesamtsanierung der Alterssiedlung aus den siebziger Jahren mit Wohnungzusammenlegungen. Neue Gemeinschaftsbereiche. Balkone.
Programm
20 behindertengerechte 2.5 und 3.5 Zimmerwohnungen, Gemeinschafts- und Spitexraum, Wohlfühlbad, Hauswart-Werkstatt. Umsetzung behördlicher Auflagen: Gebäudehülle, Asbestsanierung, Erdbebensicherheit, Brandschutz, Hindernisfreiheit.

Altri progetti di Derendinger Jaillard Architekten 

Schul- und Sportzentrum Champagne
Einfamilienhaus in Bern
Psychiatrische Universitätsklinik Rheinau
Primarschule Riethüsli St.Gallen
Haus Eber Zürich