Collège Principal de Pully
© atelier brunecky
© atelier brunecky
© dja
© dja
© dja
© dja
© dja
© dja
© Zaborowsky
© Zaborowsky
© Zaborowsky
-
Anno
-
2021
-
Auftraggeber
-
Ville de Pully
-
Bauingenieur
-
Schnetzer Puskas Ingenieure
-
Nachhaltigkeit, Gebäudetechnik, Bauphysik, Akustik
-
Raumanzug
-
Brandschutz
-
Balzer Ingenieure
-
Wettbewerb
-
2021
-
Aufgabe
-
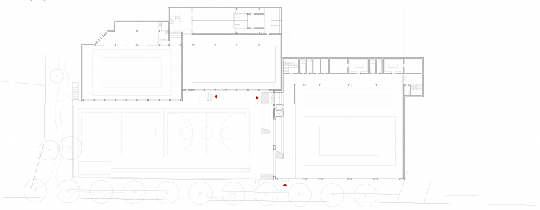
Erweiterungsbau für die Sekundarschule mit 11 Klassenzimmern, Bibliothek / Mediathek, Doppelturnhalle, Schulverwaltung
Schul- und Sportzentrum Champagne
Psychiatrische Universitätsklinik Rheinau
Primarschule Riethüsli St.Gallen