Personalhaus Vogelsang Zürich

© Dominique Marc Wehrli
© Dominique Marc Wehrli
© Dominique Marc Wehrli
© Dominique Marc Wehrli
© Dominique Marc Wehrli
© Dominique Marc Wehrli
© Dominique Marc Wehrli
© Dominique Marc Wehrli
© Dominique Marc Wehrli
© dja
© dja
© dja
Anno
2013
Auftraggeber
Kanton Zürich
Landschaftarchitektur
Berchtold. Lenzin
Kunst am Bau
Karim Noureldin
Wettbewerb
2010, 1. Preis
Aufgabe
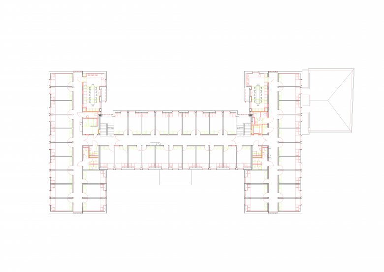
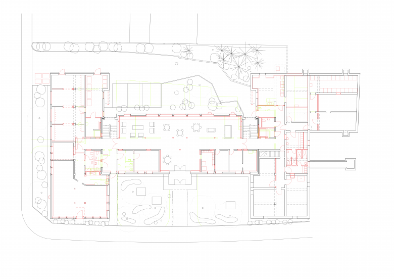
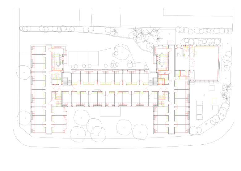
Grundlegende Sanierung des Personalwohnhauses für das Universitätsspital Zürich. Das 1955 von den Architekten Burzi + Hauenstein erstellte ehemalige Schwesternhaus ist ein erhaltens­werter Zeuge der Zürcher Architektur der 50er Jahre.
Programm
134 Zimmer, Sanitärräume, Freizeitraum und Gemeinschaftsküchen, Büros. Umsetzung behördliche Auflagen: Gebäudehülle, Asbestsanierung, Erdbebensicherheit, Brandschutz, Hindernisfreiheit.

Altri progetti di Derendinger Jaillard Architekten 

Schul- und Sportzentrum Champagne
Einfamilienhaus in Bern
Psychiatrische Universitätsklinik Rheinau
Primarschule Riethüsli St.Gallen
Haus Eber Zürich