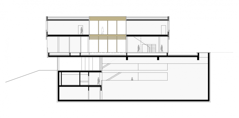
Primarschule Riethüsli St.Gallen
- Anno
- 2012
- Auftraggeber
- Stadt St.Gallen
- Bauingenieur
- AF Toscano
- Haustechnik
- Martin Pletscher
- Bauphysik
- Bakus
- Wettbewerb
- 2012, 2. Preis
- Aufgabe
- Neubau mit 12 Klassenzimmern als Tagesschule, Bibliothek / Mediathek, Mensa, Mehrzweckraum / Aula, Doppelturnhalle, Kindergarten, Pausen- und Sportplätze








