Rapperswil Lido Schwimmbad

Rapperswil, Svizzera
Visualizzazione © atelier brunecky

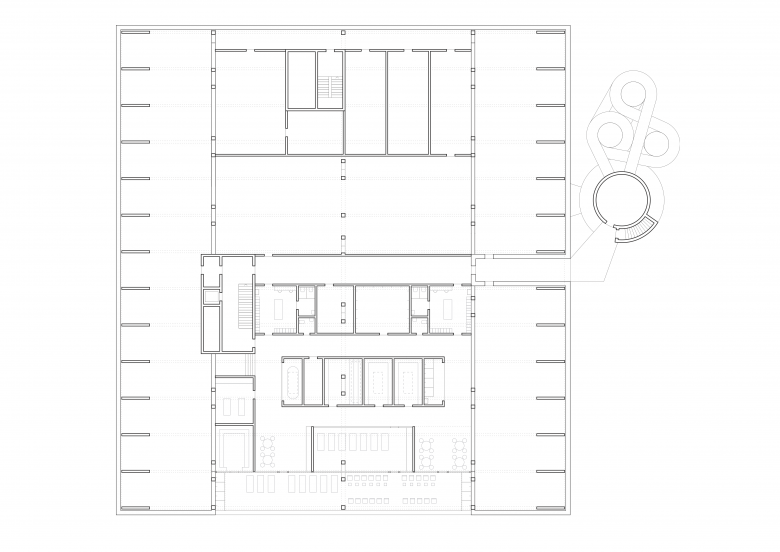
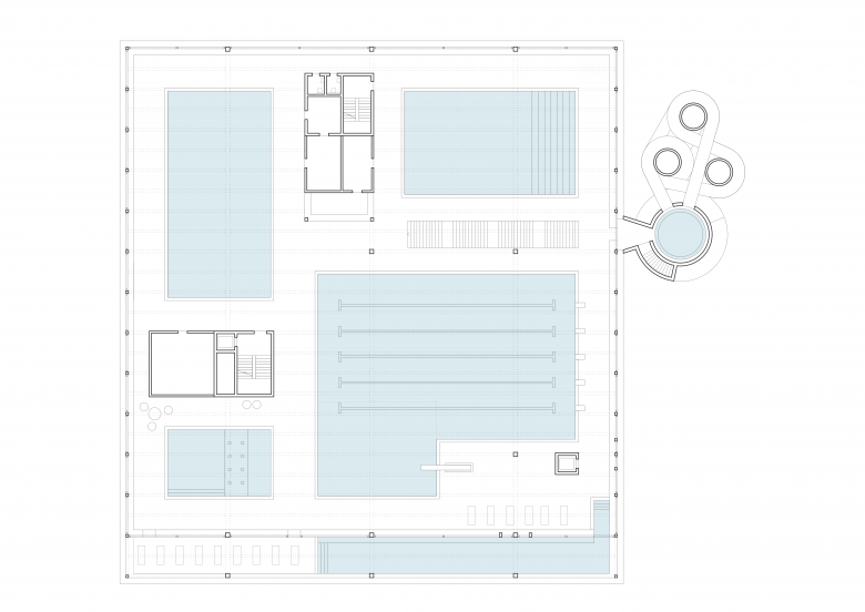
Das kompakte Gebäude des Hallenbades auf der norwestlichen Ecke des Grundstückes überlässt dem Freibad einen grosszügigen, nach Südosten und Südwesten orientierten Freiraum bis zum See: der neue Lido. Die im Masterplan definierte Zugangsachse wird als Esplanade ausgebildet - als breiter aber gefasster Raum zwischen dem Schwimmbad und der Eishalle. Es entsteht eine attraktive Eingangssituation für das Schwimmbad und ein attraktiver Zugang von der Oberseestrasse. Die Esplanade kann später bis zum See ausgebaut werden. Das Erdgeschoss des Neubaus öffnet sich auf allen Seiten und verbindet sich mit den zugehörigen Aussenräumen.

Disegno © dja
Disegno © dja
Visualizzazione © atelier brunecky
Disegno © dja
Disegno © dja
Disegno © dja
Foto © Zaborowsky
Anno
2023
Bauherrschaft
Kanton St.Gallen
Landschaftsarchitektur
LINEA landscape architecture
Baumanagement
BGS & Partner Architekten AG
Bauingenieur Holzbau
Pirmin Jung Schweiz AG
Haustechnik
COP² AG
Bauphysik & Akustik
BAKUS Bauphysik & Akustik AG
Brandschutz
Pirmin Jung Schweiz AG
Wettbewerb
2023
Ort
Projektwettbewerb Schwimmbad Lido, Rapperswil
Programm
Garderoben, Duschen, Toiletten, Freibad, Hallenbad, Wellness

Altri progetti di Derendinger Jaillard Architekten 

Schul- und Sportzentrum Champagne
Einfamilienhaus in Bern
Psychiatrische Universitätsklinik Rheinau
Primarschule Riethüsli St.Gallen
Haus Eber Zürich