Wohnhaus in Bern
Bern, Svizzera
Foto © Dominique Uldry
Foto © Dominique Uldry
Foto © Dominique Uldry
Foto © Dominique Uldry
Foto © Dominique Uldry
Foto © Dominique Uldry
Foto © Dominique Uldry
Foto © Dominique Uldry
Foto © Dominique Uldry
Foto © Dominique Uldry
Foto © Dominique Uldry
Foto © Dominique Uldry
Foto © Dominique Uldry
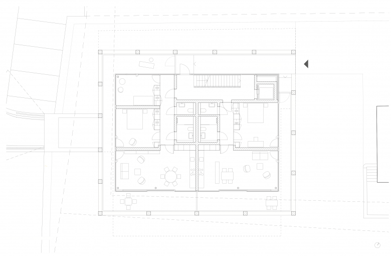
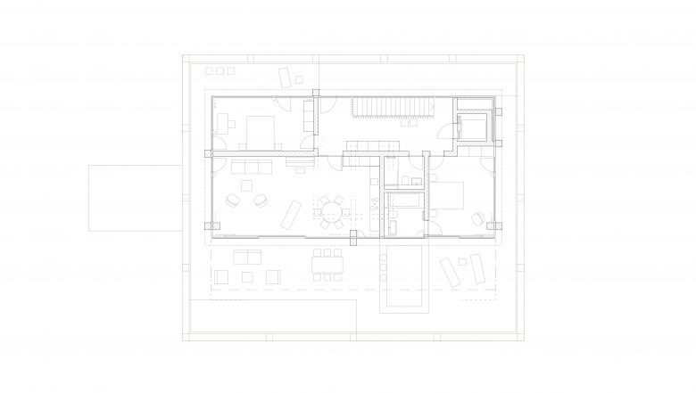
Disegno © DJA
Disegno © DJA
Disegno © DJA
Disegno © DJA
Foto © Zaborowsky
Foto © Zaborowsky
Foto © Zaborowsky
Foto © Zaborowsky
Foto © DJA
Foto © DJA
-
Anno
-
2024
-
Auftraggeber
-
Lichtsteiner Foundation
-
Landschaftsarchitektur
-
Antòn Landschaft
-
Bauingenieur
-
Schnetzer Puskas Ingenieure
-
Termine
-
Planung und Ausführung 2020 - 2024
-
Aufgabe
-
Neubau eines Wohnhauses auf der Parzelle einer 1925 von Architekt Max Hofmann erstellten Villa. Die Villa wurde im städtischen Inventar als erhaltenswert eingestuft.
-
Programm
-
Wohnhaus mit 5 Mietwohnungen. Die geräumige Gartenanlage bleibt als Ganzes zur gemeinsamen Nutzung durch die Bewohner der Villa und des Neubaus erhalten.
Schul- und Sportzentrum Champagne
Psychiatrische Universitätsklinik Rheinau
Primarschule Riethüsli St.Gallen