Loft ESN
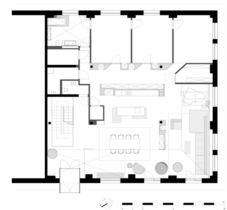
Der Palmsche Park in Esslingen ist ein ehemaliges Kasernengelände aus spätwilhelminischer Zeit. Zur Jahrtausendwende wurde es in eine Wohnanlage umgewandelt. Aufgrund seiner attraktiven Hanglage, nur zehn Gehminuten von der Esslinger Innenstadt entfernt, hat es sich zu einer beliebten Wohngegend entwickelt. Als an der Stirnseite eines zweigeschossigen Gebäuderiegels ein als Agentur genutzter Loft frei wurde, hat sich eine Familie mit zwei kleinen Kindern entschlossen, diesen Ort zu ihrem neuen Zuhause zu machen. Auf 400 Quadratmetern entstand ein großzügiger, offener Wohnraum mit präziser Zonierung und spannenden Sichtbeziehungen.
Betritt der Besucher das Loft, eröffnet sich von hier aus in horizontale wie vertikale Richtung ein weiter Raum. Wohn- und Eingangsbereich trennt lediglich ein L-förmiger Vorhangfilter. Hinter der verspiegelten Wand am Treppenaufgang, die mit Tom Dixons „Mirror Ball“ um die Wette reflektiert, verbirgt sich die Garderobe.
Das Zentrum des Erdgeschosses bildet der Essbereich. Die lange Tafel wird durch einen Teppich und feingliedrige abgependelte Lampen im Raum verortet. Die offene Küche schafft durch drei frei gestapelte Quader aus Mineralwerkstoff eine großzügige Verbindung. Die rückwärtige Küchenzeile mit den diversen Haushaltsgeräten und einem schlanken, hohen Weinregal bricht den Materialmix aus Edelstahl, lackierten Holzoberflächen und Mineralwerkstoff auf: Die Fliesenwand aus glasierten italienischen Fliesen ist eine Reminiszenz an Herkunft und Kindheit der Besitzer. Gleichzeitig schirmt die Küchenzeile den dahinterliegenden Wohnbereich der Kinder ab; ihre Rückwand mit den integrierten Schränken bildet den Flur zu den drei Kinderzimmern.
Eine weitere eingezogene Wandscheibe trennt Wohn- und Essbereich. Zur Küche hin besteht deren Oberfläche aus Tafellack, auf der anderen Seite aus farbig lackiertem Glas. Auf beiden Seiten sind Flachbildschirme integriert. Den Wohnbereich dominiert eine ausladende Couchlandschaft mit einem hochflorigen Teppich. Zum abgeschlossenen Ende hin steht vor einer textilgepolsterten Wand ein Flügel, über dem sich ein Oberlicht öffnet. Gegenüber führen zwei Türen auf die Terrasse. Die sie umgebende Wand ist raumhoch verspiegelt. Auf die Spiegelflächen und die Glastüren ist eine verästelte Liniengrafik aufgebracht, die Assoziationen an Büsche und Bäume weckt, und sich so mit dem tatsächlichen Ausblick auf den Garten überlagert. Die Spiegelwand stößt an ein hohes Regal für Feuerholz, das die „Nahrung“ für den schwebenden, skulpturalen Kamin aufnimmt. Die präzise, glatte Glasfläche und das zufällig aufgestapelte Holz stehen hier in einem spannungsvollen Kontrast, der sich in der gesamten Ebene wiederfindet. Warme Naturmaterialien und -farben – darunter das dunkel gebeizte Eichenparkett, die erdigen Töne an Wänden und Vorhängen, aber auch goldene Flächen – finden eine passende Entsprechung in pinken Farbfelder, kubischen Mineralstoffquadern oder Glasoberflächen. Zusätzliche Dynamik erhält der Raum durch die abgeschrägten Decken, deren einzelne Flächen durch die unterschiedliche Farbgebung betont werden.
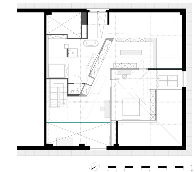
Das Obergeschoss ist den Eltern vorbehalten. Da explizit kein Arbeitszimmer gewünscht war, findet sich lediglich ein kleiner Arbeitsplatz im offenen Raum vor einer Wand. Diese gehört zu einem Haus-im-Haus, das das Schlafzimmer beherbergt, denn es war ebenfalls Kundenwunsch, hier über einen absolut lichtdichten Raum zu verfügen. Der fast hermetische Raum, dessen Kontur dem einfachsten aller Häuseraufrisse aus fünf Strichen folgt, hält lediglich über die Türen und einen vorhangverhangenen Durchgang zu Oberlicht und Fenster den Kontakt zur Außenwelt. Das warme Nachtblau der Decke wird unterbrochen von einem grauen Kreis. Der Kreis wie auch die Seitenwänden sind die Leinwand für ein labyrinthisches Schattenspiel, welches fünf Lichtkugeln darauf projizieren.
Ganz anders als das abgeschlossene Schlafzimmer, nämlich nach oben offen, präsentiert sich das Bad. Lediglich eine verspiegelte Wand trennt es vom Flur, die darüber schwebenden Lichttropfen erhellen somit beide Bereiche und verbinden die collagehaft eingestellten Objekte und Räume zu einer poetischen Wohnlandschaft.
Das Loft ESN ist die ungewöhnliche Transformation einer Kaserne in ein Büro und weiter in eine großzügige Wohnwelt.
Kunde
N.N.
Fläche
348 m²
Team
Peter Ippolito, Gunter Fleitz, You Seok Na, Markus Schmidt, Tim Lessmann, Lisa Seidl
- Anno
- 2013














