Schulzentrum FvS Rösrath
Die Leitidee: Mit dem Neubau die Stärken des Bestands aufgreifen und eine einheitliche Gesamtdramaturgie erreichen: funktional, ästhetisch und räumlich spannend.
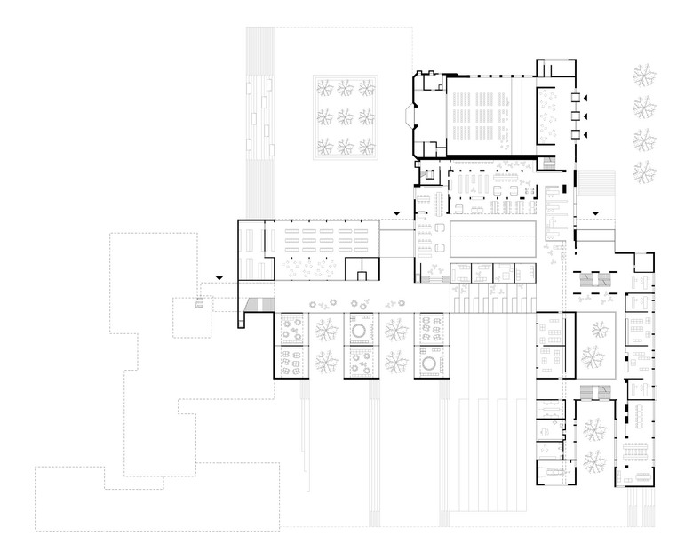
In der deutschen Kleinstadt Rösrath bei Köln-Bonn entsteht ein neues Schulzentrum mit Realschule und Gymnasium. Der bauhistorisch interessante Bestand aus den 60er - bis 80er Jahren wird behutsam adaptiert und formal vom Neubau aufgegriffen. Beide Schultypen werden zwar eigenständig verwaltet, sind aber nun funktional und räumlich miteinander verzahnt. Das bisher introvertierte Gebäude wird großzügig an die Haupterschließungwege angebunden. Der Raum vor dem Gynmasium, der Realschule und dem Ganztagsbereich wird zu differenzierten Plätzen erweitert, die die Topographie mit ihrer Hanglange abbilden. Es entstehen Bereiche für Begegnungen, Spielen und "Chillen".
Verzahnen & bündeln: Ein neuer zentraler Eingang gibt dem Schulzentrum einen Mittelpunkt, genauso wie die dominante Magistrale, die alle Gebäudeteile zusammenfasst. Die zentrale Magistrale mit latenten Bezug zum Außenraum ist das Herz des neuen Ensembles. Sie verbindet Realschule mit Gynmasium und deren gemeinsame Räume wie die Mensa, die Bibliothek und das Selbstlernzentrum. Von ihr gelangt man in die flexibel adaptierbaren Klassenräume. Sie ist großzügig und hell und von einer breiten Treppe dominiert. Sie ist nicht nur als Transfer-, sondern auch als Begegnungs- und Aufenthaltsraum angelegt.
Projektdetails
Auftragsart: Beschränkter Wettbewerb für Generalplaner nach RPW, Generalplanung
Auszeichnung: 1. Rang
Auftraggeber: Stadt Rösrath
Ort: Rösrath, DE
Jahr: Wettbewerb 2015
Realisierung: 2017-2021
Status: In Bau
BGF: 25000 m2
Baukosten: 19 Mio. EUR
Energieeffizienz: EnEV 2016
Mitarbeiter: Eva Andrasova, Otto Bäuerle, Christoph Frantes, Christian Rübenacker, Jana Sack, Michael Salvi, Andres Schenker, Rostislav Stoklasek, Katalin Tóth, Zsófia Varga, Thomas Weber
Kooperation
Architektur: Felix Thörner
Statik: Fischer + Friedrich
Bauphysik: Isrw Klapdor
Gebäudetechnik: IGP Technik
Landschaftsplanung: Scape Landschaftsarchitekten
Visualisierungen: Miss 3
- Anno
- 2020
- Project Status
- Costruito
- Cliente
- Stadt Rösrath
- Team
- Eva Andrasova, Otto Bäuerle, Christoph Frantes, Christian Rübenacker, Jana Sack, Michael Salvi, Andres Schenker, Rostislav Stoklasek, Katalin Tóth, Zsófia Varga, Thomas Weber











