Jingdezhen Imperial Kiln Museum (Design)
The most important Chinese porcelain manufactures of the last thousand years are located in the city of Jingdezhen. The surrounding region in known for its deposits of clay and Kaolin, the raw materials for pottery and China. The early settlements of the city developed around kilns, and included workshops with housing. The city´s unusual urban form is oriented to the River Chang, from where the end products were shipped to the royal palace in Beijing and to customers throughout the world. People also used kilns as social and public meeting places meeting in winter time, where on account of the radiated heat, school classes were taught. The kiln structure needed to be rebuilt ever few years, and the workers recycled the old bricks to build their houses. As a result, a special culture developed that was strongly connected to the raw material and the porcelain production process.
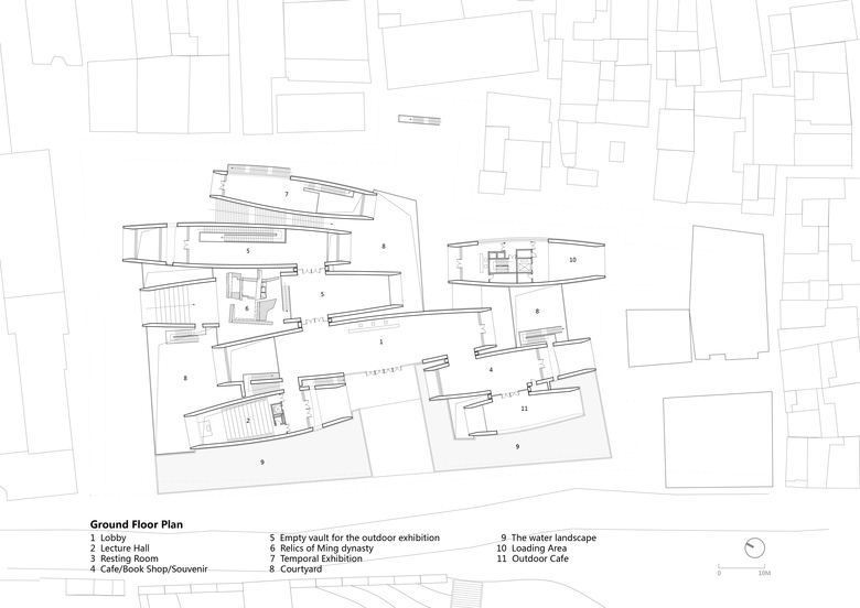
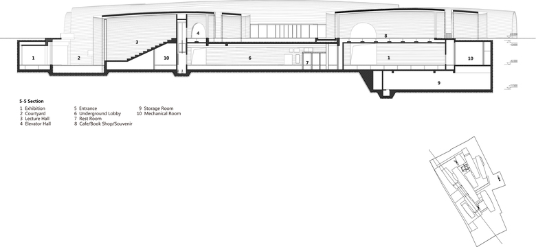
The remains of the porcelain industry, dating back to the Ming and Qing dynasties, surround the site of the new Imperial Kiln Museum. Directly opposite the museum is the fairly recent three-storey Dragon Pearl Pavilion, which originated during the Tang Dynasty and has been replaced several times since. Zhu Pei studied this place and it´s history carefully, even integrating archaeological findings into the museum design. The museum comprises more than half a dozen vaults based on the traditional form of the kilns. On the lower level, indoor and outdoor spaces are inter connected. Each of the vaults and courtyards, and together with the first floor forms a three-dimensional space with a strong local cultural grounding.
- 年
- 2016
- Project Status
- 建設中
- クライエント
- Jingdezhen Culture Broadcast & Film & Television & News & Publication Administration, Jingdezhen Ceramic Culture Tourism Group
- チーム
- Han Mo, You Changchen, Shuhei Nakamura, Liu Ling, Wu Zhigang, He Fan, Zhang Shun, Ke Jun, Lu Xia
- Structural Consultant,MEP Consultant,Green Building Consultant
- Architectural Design and Research Institute of Tsinghua University
- Facade Consultant
- Shenzhen Dadi Facade Technology CO., LTD.
- Lighting Consultant
- Ning Field Lighting Design CO., LTD.
- Acoustic Consultant
- Building Science & Technology Institute, Zhejiang University



























