Liyuan Foreign Language Primary School
Liyuan Foreign Language Primary School is located in the heart of Futian, Shenzhen’s central district. Densely surrounded by buildings, on site there is a leafy “little forest”. Upon entering the forest, one’s eyes are instantly drawn to the interwoven canopies sweeping above like clustering umbrellas. Two decades ago, this area was occupied by factories and warehouses, which were later relocated as the city developed, and the site had then been used for soil disposal. Today, standing over sixty feet tall, banyan trees planted on the resulting mound have grown into this small, precious forest. The design proposal aims to maximize the preservation of the existing forest and its terrain, while seeking to explore new typologies and spatial innovations for campus architecture.
Embedded within the urban fabric, this little forest encapsulates the memory of Shenzhen’s urbanization process over the last few decades. The meaningful preservation of this forest will help achieve a sense of continuity in the evolution of the city and its urban spaces. Endowed with this greenery, this campus will create unique pedagogical spaces. Natural elements like sunlight, rain, wind, and the change of seasons can all be experienced here in the most tangible way, which will create distinct and special childhood memories for the students.
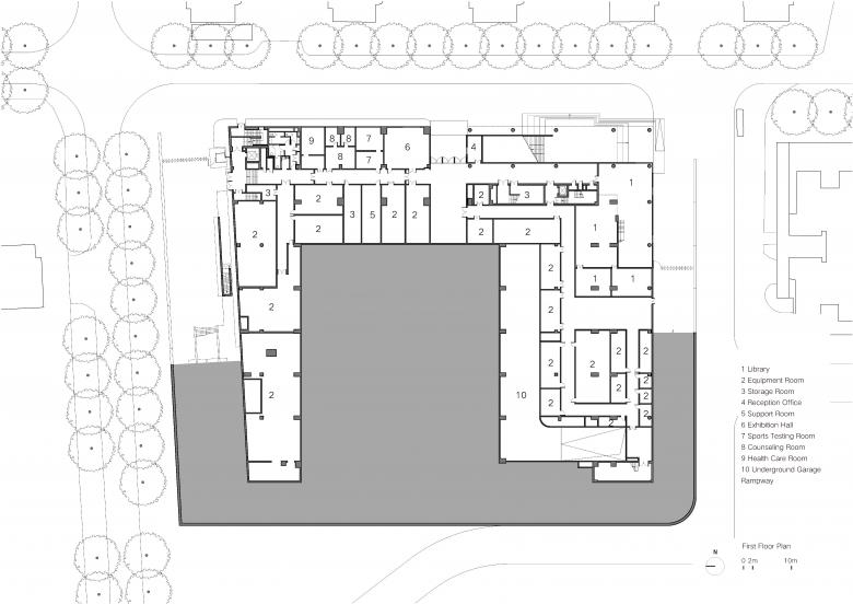
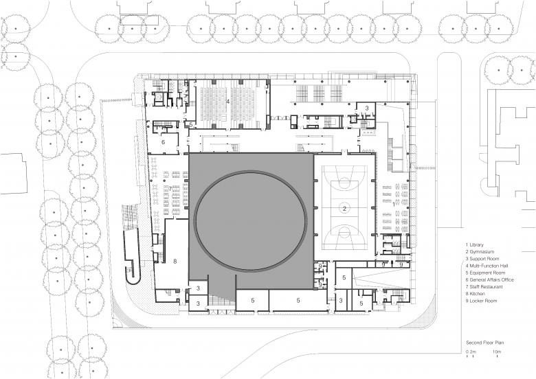
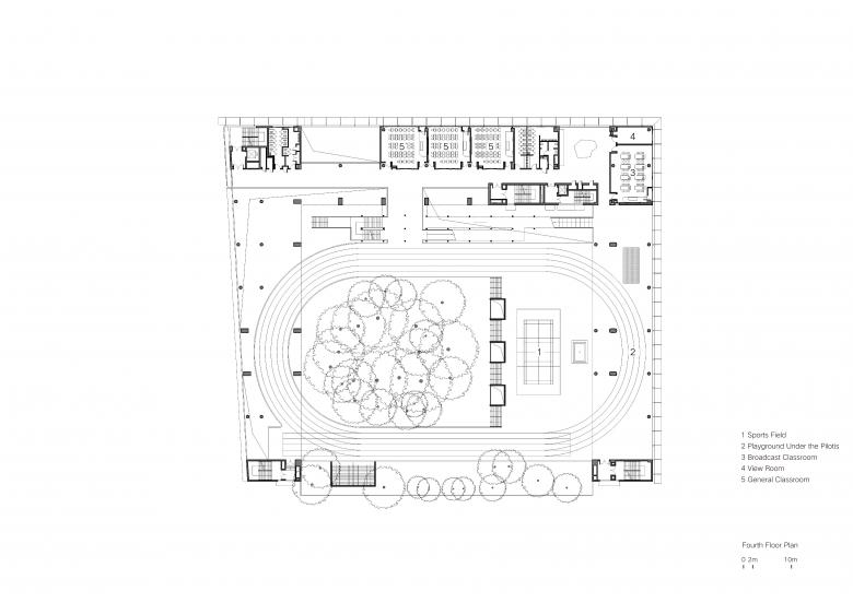
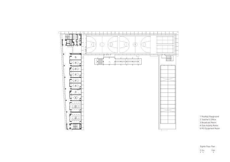
Our first challenge was to address the onerous site conditions for the design of a school with thirty-six classrooms. Restricted in size and by the existing trees, the site also has an over sixteen-foot height difference from north to south. A comb-shaped layout, which is commonly seen in conventional school designs, would not be appropriate for this project, as the goal is to ensure maximized preservation of the little forest. Through a series of iterative studies, a compact vertical massing strategy was assessed to be the most suitable approach, minimized in footprint while enclosing the site from three sides. To reduce the interference in the existing site by the new buildings, classrooms are positioned at the perimeter, enclosing the little forest on the north, south, and east. Sports facilities that are often large in scale are reorganized through a vertical arrangement of sports grounds dispersed on the rooftops and throughout the semi-subterranean spaces. The running track is elevated, with only its structural elements touching the ground. Nested within the loop of the track is the little forest, offering continuous canopies right above where students run and wander. We wanted the building to be fully adaptive to the local climate and for the architecture to radiate a charm that belongs only to southern China. Therefore, generously sized semi-outdoor public terrace spaces are devised within the relatively compact building massing. Offering ample shelter and shade, as well as sufficient natural ventilation, they form a vital place on campus that facilitates activities. These terrace spaces are plugged into the running track at various moments, with openings looking toward outside, through which one can catch a glimpse of the city when jogging. People on the street can also look inside and see the little forest via these openings. Arranged horizontally, terraces, corridors, and the running track are at once connected and juxtaposed with vertically distributed sports grounds and circulation spaces. Together they create an integrated multi-dimensional spatial system for campus activities.
On the facade, we introduced an external layer of shading panels using precast concrete. Widely adopted as an energy saving device, external shading is an effective method to resist Shenzhen’s harsh sun by filtering out high-angle sunlight, making the environment softly lit with natural light while affording good views for classrooms and public spaces.
We believe that the physical space of a school is a part of education. With the little forest nestled in her arms, this campus looks to foster a positive relationship with the city of Shenzhen and the children who are to study at Liyuan Foreign Language Primary School for six years.
Project Information:
Location: No. 33 Jiangtian South Road, Futian District, Shenzhen, Guangdong, China
Architectural/ Interior/ Landscape Design: Vector Architects
Design Principal: Dong gong
Project Architect: Feng Chaoying, Chen Zhoujie
Construction Management: Zhao Liangliang, Li Jinteng
Site Architect: Zhao Ke, Huang Tianzhi, Huang Xiongshen, Zhang Jie, Chen Yang
Design Team: Chen Gong, Tao Wei, Zhao Liangliang, Ma Xiaokai, Guan Shipeng, Gao Yudi, Lai Jianxi, Li Xiang, Liu Shida, Ai Xin, Qin Chen
Structural & MEP Engineering: Shenzhen Capol International & Associates Group
LDI Design Principal: Long Yufeng
LDI Project Architect: Zhan Yitao
LDI Architect: Liang Yin、Xiong Wei、Lin Xing、Li Pengcheng
Structural Design: Xu Yuming 、Wu Yaping、Xiao Zhengjian、Liu Ming
MEP Design: Chen Juan、Zhang Jing、Zhou Tianyang、Xie Zhen、Song Jing、Zhong Zhanwen、Lei Yaxiong、Su dongpo、Wang Huibing、Lin Peiyi、Wang Yeming、Li Beibei
Interior Design: Li Jianhua、Xie Jilong
Green Building Design: Lin Zitao
Landscape Design: Chen Huanmin, Ye Xiangqian, Shi Huixia
Foundation Pit Design: CABR Foundation Engineering Co., Ltd.
Facade Design: Shenzhen Yingke Facade Design Consulting Co., Ltd.
Classroom Lighting Consultant:X Studio, School of Architecture, Tsinghua University
Acoustic Consultant: JH Theatre Architecture Design Consulting Company
Signage Designer:Cycle Creative Design(Shenzhen) Co., Ltd.
Client: Shenzhen Futian District Bureau of Education, Bureau of Public Works of Shenzhen Municipality
Competition Academic Planning, Supervision, and Organizing Party: Urban Planning and Land Resources Commission, Futian Management Bureau, Shenzhen, Organizing Committee of Futian New Campus Action Plan
Construction Management: CAPOL International & Associates Group
Construction Management Team: Zheng Pandeng, Liao Mingyu, Chen Fuguang, Tong Jinbao, Liu Yuzhong, Hu Wei, Zheng Lixuan, Gu Peiqin, Wang Xinjie, Ning Pinggui, Fan Yunzhuo
Construction Contractor: Shenzhen Huasheng Construction Group Co., Ltd.
Structure System: Frame-shear wall structure
Materials: Fair-faced concrete, UHPC, Terrazzo, Steel, Metal Mesh, Glass
Building Area: 29061.80 ㎡ (above the ground 25301.17㎡, underground 3760.6㎡)
Footprint Area: 5613.57㎡
Site Area: 9550.83㎡
Design Period: 2018.03-2020.12
Construction Period: 2021.01-2023.12
- Ano
- 2023
- Project Status
- Built






























