Taoyuanju Office Interior Renovation Design
In the summer of 2010, we were invited by the client to design their 1200 m2 interior work space in Tianjin. The existing space, which is an individual office building, is evenly divided into three floors, connected by an enclosed staircase and an elevator.
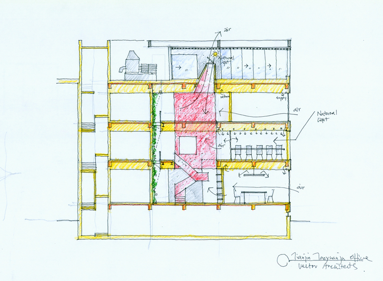
The design challenge is how to instill a provoking and active energy to such a mediocre and static structure. Instead of the conventional office pattern, which all the program units connected by corridors, we try to establish a continuous space system that the most of the office public and sharable activities could take place in, such as displaying, casual meeting and gathering, chatting, thought exchanging, waiting, having coffee or tea, relaxing, reading and etc. The system situates at the central bay of the existing floor plate, where considered as the location of the least spatial quality for desk working because of its limited air flow and natural light gain. The public life system also functions as the main circulation spine. In order to reinforce the visual and circulation continuity vertically, a series of square openings are cut from the existing concrete slabs during the renovation. We hope such a space system, like a container of the public activities, could consistently generate and amplify the energy of the office daily life, and eventually motivate the entire surrounding regular work area.
The public life system starts at the lobby at first floor, and ends at the waiting and chatting area under a skylight at the third floor. Its material pallet is unique from the regular work area around, consisting of perforated steel panel, self leveling concrete, prefab concrete panel and vertical green wall. The green wall, with an automatic water irrigation system embedded, not only becomes a unique visual character of each floor, but also consistently assists indoor air quality improvement by the large amount of vegetation growing on top of it.
- Ano
- 2012
- Project Status
- Built













