Huis Van Colen

Heilig Sacramentstraat, Wingene
© Frederik Vercruysse

Dit is een woning voor een veearts-zelfbouwer. Het goed is gelegen in Wingene, een typisch Westvlaamse plattelandsgemeente. De bouwgrond grenst aan waardevol agrarisch gebied.

Omdat de straat de winterbedding van een beekje vormt, bestaat de typische Vlaamse reflex erin om de bouwgrond ter grootte van het eigen perceel op te hogen. Hierdoor ontstaan aan de straatzijde allemaal “hopen” met een huis op. Ieder voor zich, God voor ons allen.

Deze woning echter, wijkt van dit principe af doordat ze zich op het natuurlijke maaiveld inplant, lager dan de straat. Hierdoor distantieert ze zich onmiddellijk van haar buren -en bij uitbreiding- van het doorsnee bouwen in een typisch Vlaamse buitengebied.

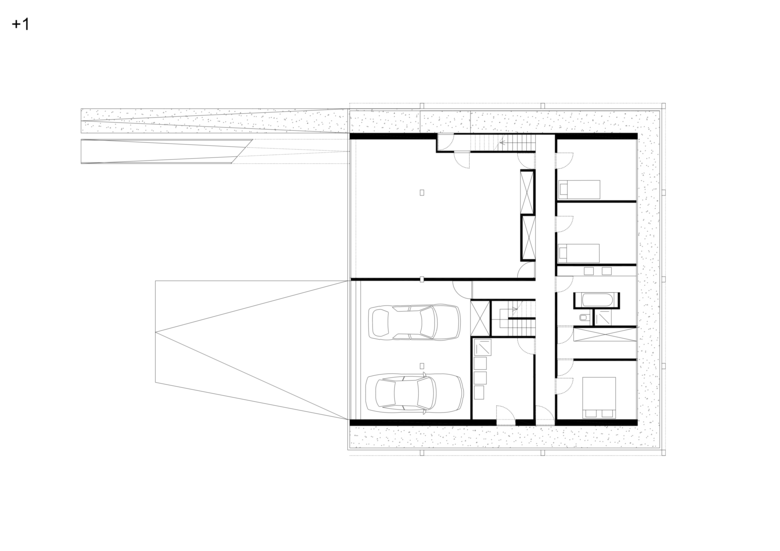
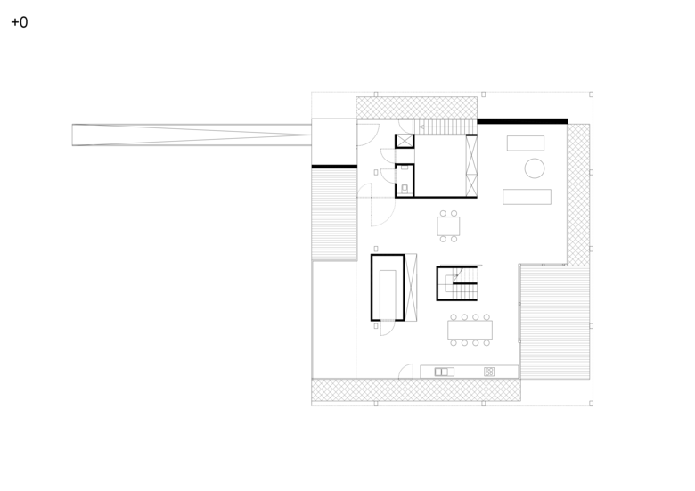
Het behoud van de bestaande topografie beschouwen we als een eerste duidelijke ontwerpzet. Dit leidt direct tot een andersoortige indeling van de woonst: het leven gebeurt op +1, het slapen op het gelijkvloers. Ten opzichte van de straat leeft men op een bel etage. Een (momenteel nog ontbrekende) loopbrug verbindt straat en leefniveau. Door dit bel etage principe, krijgt de leefruimte een panoramisch zicht op de omgevende akkers en weiden.

De tweede ontwerpzet introduceert de welgekende Vlaamse staltypologie: een industriële “ready-made” stalen structuur wordt in een mum van tijd opgetrokken. Onder deze herkenbare typologie stapelt de bouwheer zijn eigen woonvolumes. Dat rekt het bouwproces enigszins maar het engagement van deze zelfbouwende familie is intenser en intrigerender dan een “normaal” bouwproces.

De woning is per definitie nooit af.

Dit is geen “design”. Dit is authentieke nestvorming.

照片 © Frederik Vercruysse
照片 © Frederik Vercruysse
照片 © Frederik Vercruysse
照片 © Frederik Vercruysse
照片 © Frederik Vercruysse
照片 © Frederik Vercruysse
照片 © Frederik Vercruysse
照片 © Frederik Vercruysse
照片 © Frederik Vercruysse
图纸 © Compagnie O. Architects
图纸 © Compagnie O. Architects
图纸 © Compagnie O. Architects
年份
2008
Project Status
已建造

以下出品方的其他项目 Compagnie O. Architects 

Polyvalent Pavilion Brasschaat
Brasschaat
Elementary School Melle
Melle
Post Nuclear Necropolis Doel
Doel
Safety Pavilion Knokke
Knokke-Heist
Cemetery Pavilions Brasschaat
Brasschaat