Casa SSX
Palermo, 意大利
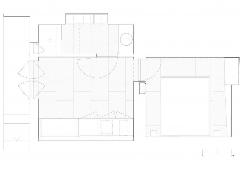
Casa SSX è una piccola abitazione nel centro di Palermo pensata per brevi soggiorni.
Progettare una casa di soli 26 m² è stata l’occasione per confrontarsi con il tema della “dimensione minima dell’abitare”: l’existenz minimum. Ottimizzare lo spazio in base alle esigenze richieste rappresenta una condizione normativa necessaria, disegnando ogni parte sartorialmente. L’ambiente principale della casa, si caratterizza attraverso la contrapposizione di forme date e generate: Il soffitto a botte esistente viene riportato a rustico e si contrappone alle falde spigolose del nuovo volume rivestito in legno che contiene il bagno, un parallelepipedo, invece integra il mobile cucina (apribile all’occasione) con un piccolo divano.
Un unico sistema nella zona notte, integra: letto, scrittoio e ripiani, è un velo. I materiali sono pochi e semplici: gres a grande formato per i pavimenti e i rivestimenti, legno laccato bianco per gli arredi su misura.
- 年份
- 2020
- Project Status
- 已建造
- Ebanista
- Laredo














