Wohnanlage Probstenhofweg
arge reitter_bortolotti_cede
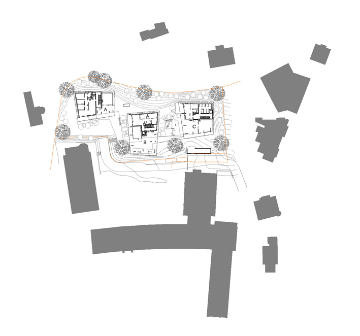
EINEN NEUEN ORT BAUEN
Wir bauen eine Anlehnung an die mächtigen villenartigen Mietshäuser der vorletzten Jahrhundertwende, die das Höttinger Ried aus einer bäuerlichen Agglomeration zu einer guten Wohnadresse machten.
Die Straßenfassade als Scheiben mit aleatorisch verteilten Öffnungen, die Gartenfassade mit einer vorgestellten Balkonschicht, analog zu den alten Holzveranden. Kräftige, selbstbewusst freistehende Körper, die sich in präziser Reaktion auf die Umgebung anordnen. Durch die versetzte Anordnung „umspült“ der neue kleine Park die Häuser und schafft so größtmögliche Privatheit für die Wohnungen. Die 3 Bauten strahlen Individualität und hohe Lebensqualität aus. Von der sich aufdrängenden städtebaulichen Geste, einen „Hof“ mit dem Priesterseminar zu schaffen wurde –wegen der fehlenden inhaltlichen Kongruenz- bewusst Abstand genommen. Wohnen und geistliche Verwaltungsarbeit in harmonischem Nebeneinander, verbunden durch das Konzept des kleinen Parks.
DIE WOHNUNGEN
Sind in kompakten 3 Spännern organisiert. Sie haben immer zwei Fassaden oder Südorientierung, die vorgestellten Veranden ergeben intime, akustisch abgeschirmte private Freibereiche. Im inneren wurde auf optimale Nutzbarkeit Wert gelegt. So kann in den meisten Fällen bei Bedarf ein „zusätzlicher individual Raum“ bei Beibehaltung einer Wohnküche abgeteilt werden. Die straßenseitigen Räume erhalten Schallschutzfenster; kombiniert mit der Komfortlüftung ist die Höhenstrasse nach Abklärung mit dem Bau-Akustiker durch diese Maßnahmen kein Problem.
DIE HALBÖFFENTLICHE ÜBERGANGSZONE
Durch die Lage im geneigten Gelände bietet sich an, den fußläufigen Zugang konsequent von Süden her zu organisieren. Eine „Familie von Eingängen“ liegt an der leicht angehobenen, halböffentlichen Übergangszone, gegenüber dem Parkplatz.
Helle Fahrradräume und verglaste Waschsalons (die auch andere sinnvolle Nutzungen erlauben) flankieren die Hauseingänge. Die Kellerabteile liegen im eingegrabenen Teil des Eingangsgeschosses. Das mittlere Haus mit dem überdeckten Freibereich lädt zum Spielen bei Schlechtwetter oder vielleicht zu Hoffesten an den langen Sommerabenden ein.
DAS PASSIVHAUS
Die Eckpunkte der Passivhausplanung sind bester Dämmstandard der Gebäude rundum, Fenster mit hochwertiger Dreischeiben - Verglasung, Verwendung ökologisch einwandfreier Materialien moderner Komfortlüftung und Energietechnik.








