Anbau EFH Meier

Eschenbach, Switzerland
Fotografia © Boerje Müller
Fotografia © Boerje Müller
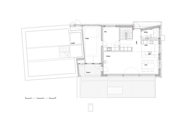
Dibuix © Lengacher Emmenegger Partner AG
Any
2008

Altres projectes per Lengacher Emmenegger Partner 

Restaurant Rössli-hü
Root, Switzerland
Überbauung Minoletti
Kriens, Switzerland
Überbauung Margrethenhof
Ballwil, Switzerland
Umbau EFH
Agglomeration von Luzern, Switzerland
Teiggi Wohnwerk
Kriens, Switzerland