Nürnberg Sebalder Höfe
Das Sebaldusareal am östlichen Rand der Altstadt gelegen ist Teil einer städtischen Blockrandbebauung - derzeit ein Superblock. Die am publikumswirksamen östlichen Stadteingang gelegene Blockseite erhält ein neues Einkaufszentrum mit Büronutzung. Westlich und südlich daran anschließend wird das Blockinnere in kleinteilige Baufelder geteilt, die eine vielfältige Durchwegung des Superblockes ermöglichen. Als Motiv dient hierbei das räumliche Element des öffentlichen Hofes (z.B. Kupferschmiedshof). Dieses Element prägt in seiner vierfachen Addition die neuen öffentlichen Räume des Blockes.
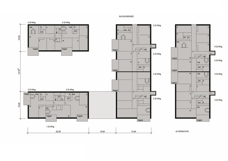
Die Baufelder sind mit Wohngruppen bebaut, zwischen denen sich je ein begrünter Wohnhof bildet. Alle Erdgeschosswohnungen erhalten vorgelagerte Gärten, die teilweise aufgrund der Topographie des Geländes gegenüber dem Straßenniveau angehoben sind. Angelehnt an die "Nürnbergische Hesperides" soll eine vielfältige, gut nutzbare und mit einem hohen Freizeitwert ausgestattete Abfolge grüner Räume entstehen. Dies sind die privaten Gärten mit unmittelbarem Anschluss an die Erdgeschosswohnungen, die den Wohngruppen zugeordneten, grünen Wohnhöfe, sowie die den Oberschosswohnungen zugeordneten begrünten und nutzbaren Dachgärten.
Planungszeit
2005-2008
Bauherr
alpha Projektentwicklung, City-West-GmbH &Co.KG Nürnberg
Planung
MORPHO-LOGIC
Michael Gebhard, Prof. Ingrid Burgstaller, M.Sc. Dipl.Ing. Architekten BDA Stadtplaner, Partnerschaftsgesellschaft
Mitarbeit: Katharina Satzinger
Ablauf
2005 Ausführungsempfehlung Städtebau, Städtebauliches Gutachten 2008 Rahmenplan
Veröffentlichung
competitionline 2005






