Maestrani, Erweiterung Bürotrakt und Besucherbereich

Flawil, Switzerland
Any
2013
Client
Maestrani Flawil
Aufgabe
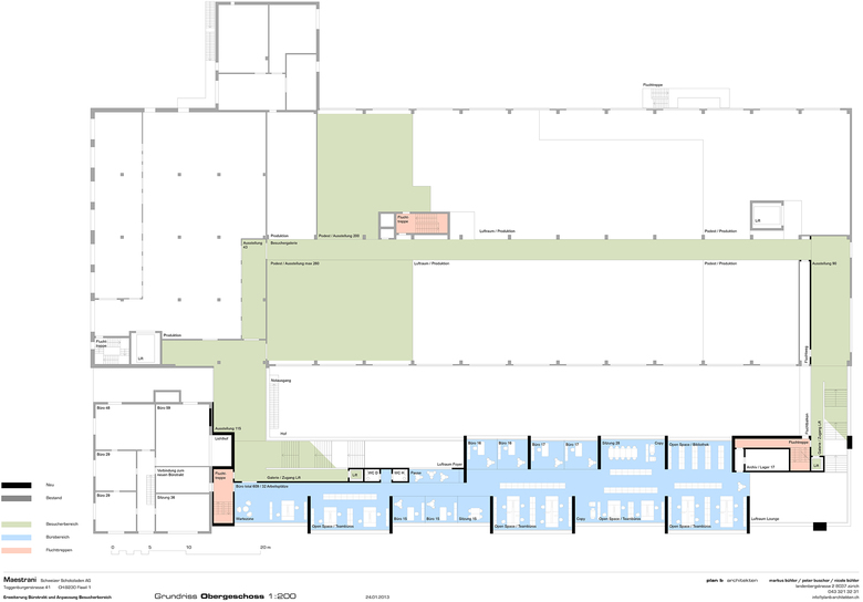
Variantenstudien zum Ausbau des Besucherbereiches „Schoggiland“ und des Bürobereiches der Firma Maestrani in Flawil.
Projekt
2011-2013

Altres projectes per plan b architekten gmbh 

Neugestaltung Gebäudezugang und Büros
Schweiz, Switzerland
Evangelische Kirche Goldach, gedeckte Halle
Goldach, Switzerland
Ueberbauung Areal Wiesental
Herisau, Switzerland
Oberstufenzentrum Wildhaus
Alt St. Johann, Switzerland
Bürgerhaus Engelgasse
Teufen, Switzerland