Schulhaus Dorf

Rehetobel, Switzerland

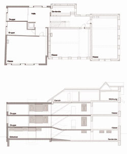
Alt- und Neubau werden unter gegenseitigem Respekt zusammengefügt. Von Aussen setzt sich der Anbau - trotz subtilen Gemeinsamkeiten wie Traufhöhe und Fenstergewände - selbstbewusst vom bestehenden Schulhaus ab. Im Innern jedoch verbinden sich Alt und Neu zu einer Einheit von unerwarteter Grosszügigkeit.

Das Pausenareal ist eingespannt zwischen einer hangseitigen Stützmauer und einer talseitigen Hecke. In diese sind organisch geformte Pavillons so eingefügt, dass sie nach einiger Zeit einwachsen werden. Der gedeckte Velounterstand ist in die Stützmauer integriert.

Any
2005
Client
Einwohnergemeinde Rehetobel AR
Aufgabe
Erweiterung / Umbau
Wettbewerb
2001, 1. Rang
Realisierung
2003-2005
Auszeichnung
Gutes Bauen Ostschweiz 2001-2005

Altres projectes per plan b architekten gmbh 

Neugestaltung Gebäudezugang und Büros
Schweiz, Switzerland
Evangelische Kirche Goldach, gedeckte Halle
Goldach, Switzerland
Ueberbauung Areal Wiesental
Herisau, Switzerland
Oberstufenzentrum Wildhaus
Alt St. Johann, Switzerland
Bürgerhaus Engelgasse
Teufen, Switzerland