Habitat Store

Tarragona, Spain
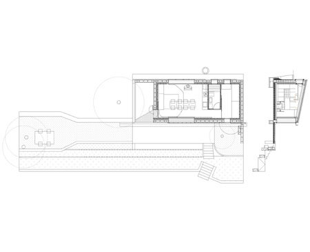
Dibuix © XNF ARQUITECTES

This habitat - store is thought from the existing farm language . The galvanized steel mechanisms are opened or closed in depending of the construction use.

Dibuix © XNF ARQUITECTES
Fotografia © Rafael Vargas
Fotografia © Rafael Vargas
Fotografia © Rafael Vargas
Fotografia © Rafael Vargas
Fotografia © Rafael Vargas
Fotografia © Rafael Vargas
Architects
XNF Arquitectes
Any
2010

Projectes relacionats 

  • HOMAG Campus Schopfloch
    blocher partners
  • Penthouse FR
    MR Design Studio | Product and Interior design
  • Rodari Primary School
    C+S Architects
  • Rosenberghalde
    freiraumarchitektur
  • Fusion
    SNOW ARCHITEKTUR

Revista 

Altres projectes per XNF Arquitectes 

Re-Viure els Barris
Barcelona, Spain
Reursa+Incasol Office
Barcelona, Spain
Sports Complex
El Papiol, Spain
Cripta FAD
Barcelona, Spain
BCN in progress forum 2004
Barcelona, Spain