National Museum for Shoes & Brooms
Izegem
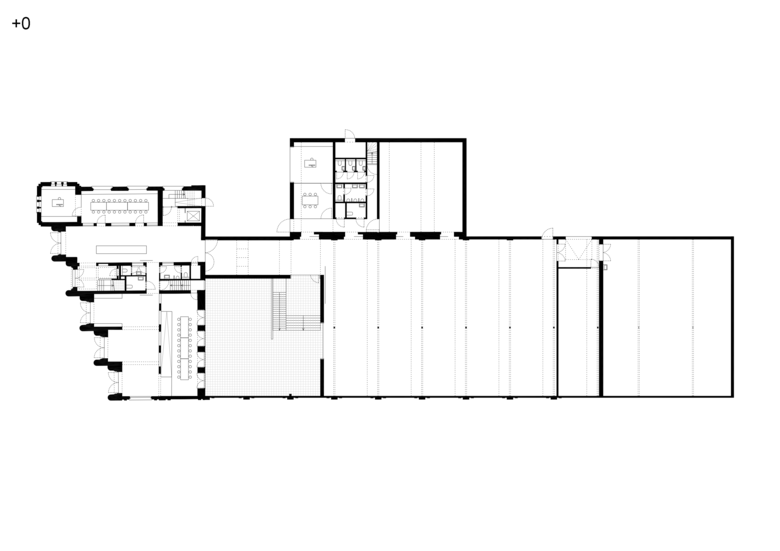
In the industrial area near the port of Izegem lies a somewhat odd monument with an art-déco front office and factory buildings in the back: this is the former shoe factory “Eperon d’Or”. With the new program in mind, this to-be National Museum for Shoes and Brooms was in desperate need of a complete renovation and volume-upgrade. In cooperation with a heritage specialist, we decided to do the minimum. We restored what was already of value and added only the absolutely necessary: a staircase inside, a new small theatre at the backside and a golden exhibition space on top.
- Architects
- Compagnie O. Architects
- Any
- 2017
- Equip
- Cieo + Geert Pauwels + Sabine Okkerse





















