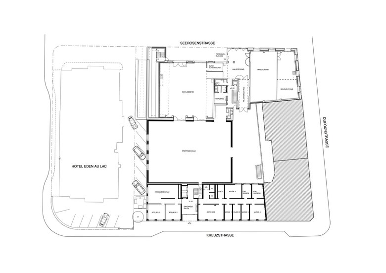
Neubau Büro- und Werkstättengebäude, Zürich
Bauherrschaft:
Opernhaus Zürich AG und Allreal Generalunternehmung
Städtebau:
Erstellung einer geschlossenen Hofrandbebauung mit dem denkmalgeschützten Hotel Eden mit repräsentativer Fassade zum See.
Nutzung:
Erweiterung der Werkstätten des Opernhaus Zürich mit einem dreigeschossigen Montageraum und einem zweigeschossigen Malsaal. Integration des internationalen Opernstudios mit Proberäumen, Musikzimmern, Dramaturgie und Verwaltungsräumen des Opernhauses. Vermietbare Räume der Allreal Generalunternehmung.
Hinterlüftete Fassaden mit Verkleidung aus Sandsteinplatten. Kastenfenster aus äusserer nicht unterteilter Verglasung und inneren dreiteiligen Fenstern zum öffnen.
- Any
- 2007






