On Labs
Founded as an innovative start-up in 2010, On has since grown into a worldwide leader among running shoe brands.
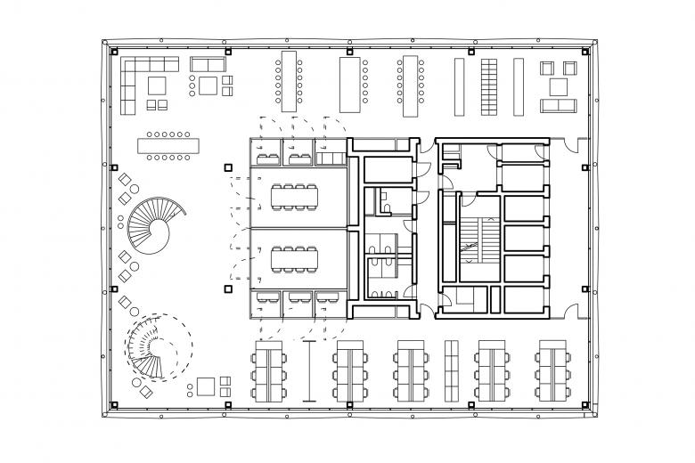
Situated in the dynamic Zurich West district, the firm’s new corporate headquarters by local architects EM2N provide space for approximately 1000 employees in a 17-storey high-rise building. Spillmann Echsle’s interior fit-out, a joined collaboration with Specific Generic of Stockholm, reflects the architectural logic of the building as a whole and forms a spatial link between the two different worlds of product development housed within: the “lab”, which occupies the structure’s four-storey base, and the “neighbourhoods” above, where marketing, logistics, and sales activities take place.
A reception area with an integrated café and shop is located on the ground floor. One floor up, a generous two-storey space for meeting and co-working is open to external visitors, thus establishing a connection to the surrounding city.
While stairs in the building’s base are straight, they curve to form ever-narrower spiral staircases in the tower above. These staircases provide access between the three-storey “neighbourhoods” stacked one atop the other, each of which contains a kitchenette, a break area, various informal meeting spaces, office workspaces, and conference rooms. The conference rooms are concentrated in the building’s open-plan centre, where they are organised around a stair core and wrapped in perforated wood sheathing. Large pivot doors create generous openings in the sheathing, blurring the threshold between the work and meeting spaces on either side.
- Any
- 2022
- Project Status
- Construït
- Client
- On
- Equip
- annette spillmann, harald echsle, christoph heitzmann, andrás kiss, philippe steiner, siyi dai, linda hatava, simone iseli, chen kaihong, gosia kocima, alexandra meuche, raphael suter
- Co-Author
- Specific Generic
- Co-Author
- Maja Bernvill









