Altonaer Museum für Kunst und Kulturgeschichte
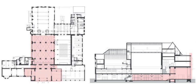
Die Vergangenheit hat dem Charakter und der Identität des Altonaer Museums große Schäden zugefügt. Die baulichen und inhaltlichen Entscheidungen der Wiederaufbauten, insbesondere der 50er und 80er Jahre, sind aus heutiger Sicht schwer nachvollziehbar. So war es eine gute und richtige Entscheidung der Kulturbehörde, den bislang eingeschlagenen Weg der kleinen Schritte nicht weiter zu gehen.
Im Auftrag der Stiftung historische Museen Hamburg/Altonaer Museum für Kunst- und Kulturgeschichte haben wir einen Masterplan erstellt, der die langfristige Zukunft des Hauses betrachtet. Der Masterplan wurde in 7 Baustufen gegliedert, die, je nach Dringlichkeit und wirtschaftlicher Situation, einzeln realisiert werden können.
Architektur
Störmer Murphy and Partners
BGF
10.000 qm
- Any
- 2009
- Project Status
- Construït





