Fachschule der Pädagogischen Akademie Elisabethenstift

Stiftraße 41, 64287 Darmstadt, Germany
© Thomas Ott

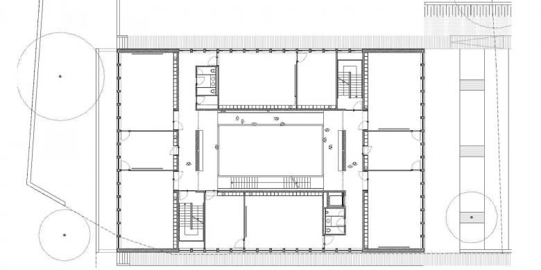
Der 4-geschossige Baukörper des neuen Schulgebäudes öffnet sich schaufensterartig zur Landgraf-Georg-Strasse. Zur angrenzenden Bebauung bildet sich ein campusartiger Platz. Die zentrale, alle Ebenen verbindende Innenhalle bildet das Herz der Schule. Mit ihren Galerien ist die Halle Treffpunkt für Schüler und Dozenten und Versammlungsstätte bei großen Veranstaltungen. Alle der Konzentration dienenden Räume sind ringförmig um die Halle angeordnet. Zwischen den Klassenräumen sind kleinere Gruppenräume angeordnet, so dass differenziertes Lernen in unterschiedlichsten Formen möglich ist. Das Fassadenmaterial nimmt Bezug zu den Altbauten des Elisabethenstifts und der Mathildenhöhe.

© Thomas Ott
© Thomas Ott
© Thomas Ott
© Thomas Ott
© Thomas Ott
© Thomas Ott
© Thomas Ott
© Thomas Ott
© Thomas Ott
© Thomas Ott
© Thomas Ott
© Thomas Ott
© Thomas Ott
© Waechter + Waechter Architekten BDA, Darmstadt
© Waechter + Waechter Architekten BDA, Darmstadt
© Waechter + Waechter Architekten BDA, Darmstadt
© Waechter + Waechter Architekten BDA, Darmstadt
© Thomas Ott
Any
2008
Client
Pädagogische Akademie Elisabethenstift

Altres projectes per Waechter + Waechter Architekten 

Sanierung und Aufstockung Herderschule
Darmstadt, Germany
AFZ Assessment- und Förderzentrum Neuwied
Neuwied-Engers, Germany
AIZ ‐ Akademie der Deutschen Gesellschaft für Internationale Zusammenarbeit (GIZ) am Campus Kottenforst
Bonn, Germany
Internat Berufsbildungswerk Josefsheim
Olsberg, Germany
Haus im Burggarten – Wohnpflegeheim
Breitenbach am Herzberg, Germany