Justizzentrum, Oberlandesgericht und Polizeipräsidium

Mathildenplatz 14, 64283 Darmstadt, Germany
© Thomas Ott

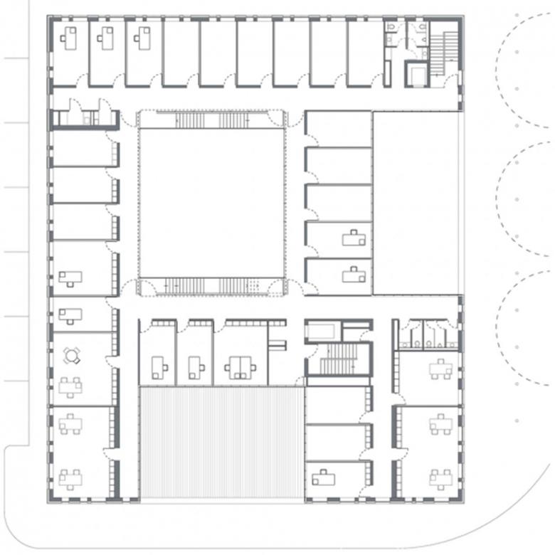
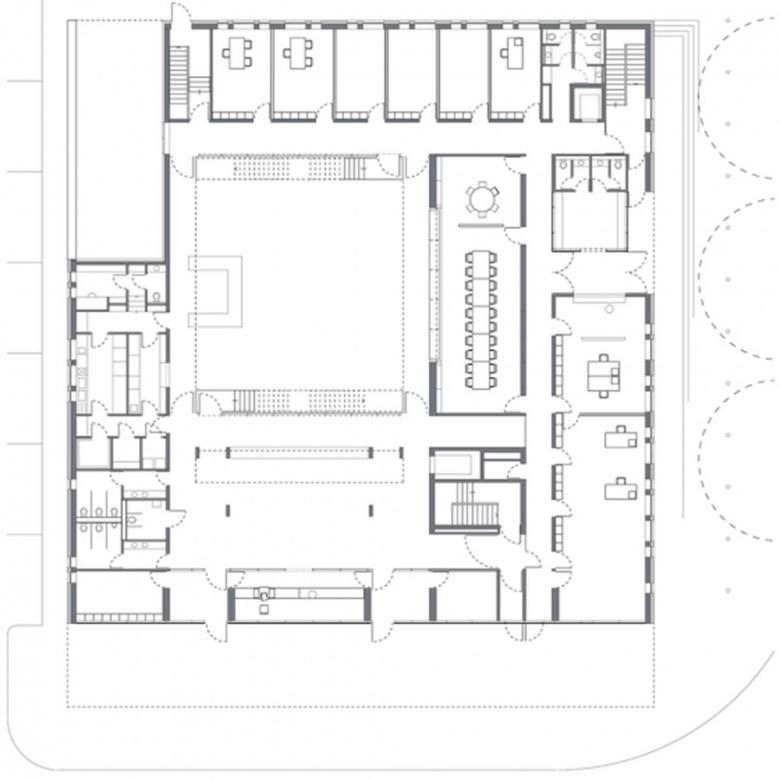
Der 5-geschossige Baukörper wird durch plastische Einschnitte, das Wegnehmen einzelner Volumen aus einem Quader, gegliedert. Es entsteht ein gleichwertiger Stadtkörper in der Reihe von Amts- und Landgericht, der die Maßstäblichkeit des angrenzenden Johannesviertels respektiert. Das 'Herz' und Orientierungspunkt des Gebäudes bildet die lichtdurchflutete zentrale Halle, und interpretiert so das Thema der Erschließungshalle im alten Amtsgericht neu.

© Thomas Ott
© Thomas Ott
© Thomas Ott
© Thomas Ott
© Thomas Ott
© Thomas Ott
© Thomas Ott
© Thomas Ott
© Thomas Ott
© Thomas Ott
© Thomas Ott
© Thomas Ott
© Thomas Ott
© Waechter + Waechter Architekten BDA, Darmstadt
© Waechter + Waechter Architekten BDA, Darmstadt
© Waechter + Waechter Architekten BDA, Darmstadt
© Waechter + Waechter Architekten BDA, Darmstadt
Any
2009
Client
Land Hessen endvertreten durch das hbm Hessem RNL Süd
Leistungsphasen
1 - 4, Leitdetails, künstlerische Oberleitung
Auszeichnung
2013, BDA Hessen, Joseph-Maria-Olbrich-Plakette

Altres projectes per Waechter + Waechter Architekten 

Sanierung und Aufstockung Herderschule
Darmstadt, Germany
AFZ Assessment- und Förderzentrum Neuwied
Neuwied-Engers, Germany
AIZ ‐ Akademie der Deutschen Gesellschaft für Internationale Zusammenarbeit (GIZ) am Campus Kottenforst
Bonn, Germany
Internat Berufsbildungswerk Josefsheim
Olsberg, Germany
Haus im Burggarten – Wohnpflegeheim
Breitenbach am Herzberg, Germany