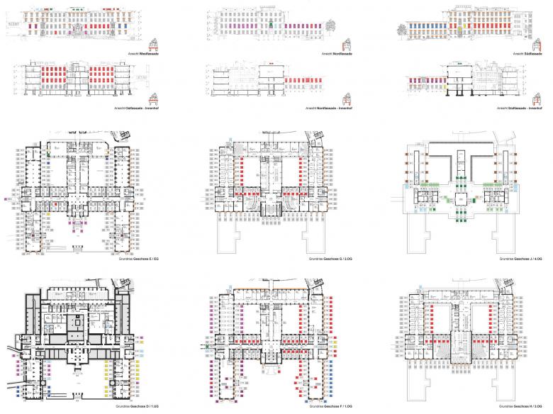
ETH Zürich, ehemaliges Chemiegebäude
Institutsgebäude von A.F. Bluntschli und G. Lasius (1884 – 1886) erstellt,
Erweiterung Durch O.R. Salvisberg (1937).
Unter kantonalem Denkmalschutz.
Strategiefindung für die Erneuerung der verschiedenartigen Fenstern und Türen. Bauarbeiten unter Betrieb während 2 Jahren.
- Jahr
- 2018
- Project Status
- Gebaut
- Bauherrschaft
- ETH Immobilien




